highlight_off
Riferimento annuncio 259356 info

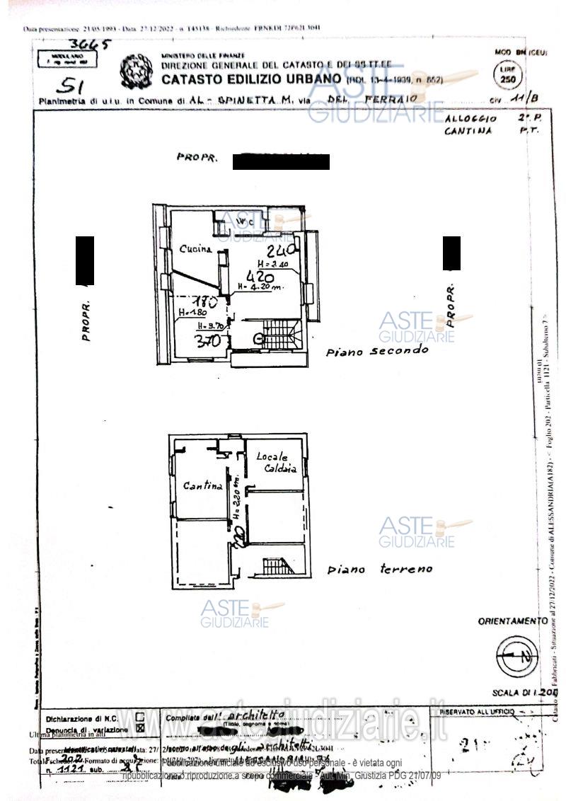
Fabbricato civile Frazione San Giuliano Vecchio, via casoni n 16, 15100 Alessandria (AL)

0
€ 5.860
Vendita all'asta Senza incanto - LOTTO UNICO: Fabbricato in corso di ristrutturazione/costruzione, abitazione di tipo popolare, privo di tetto, impianti, pavimenti, serramenti. Con area cortilizia esclusiva di circa 450 mq, attualmente in stato di abbandono con vario materiale all'interno. Prezzo base € 5.860,00 (offerta minima € 4.395,00). Data vendita 20/02/2026 ore 09:00. Professionista delegato alla vendita Avv. Simona Chiola - Email "simonachiola@alice.it"; Cell. 3471306910; Tel. 0141793060. Custode Giudiziario Avv. Simona Chiola - Email "simonachiola@alice.it"; Cell. 3471306910; Tel. 0141793060. Rif. Tribunale di Alessandria - Esecuzione immobiliare post legge 80 n. 104/2022

Superficie mq
Vani
Bagni
Piano 0

Tipologia di vendita Giudiziaria
Modalità di vendita Presso il venditore
Termine presentazione offerte 01/01/1900 ore 00:00
Data e ora inizio gara 20/02/2026 ore 09:00
Codice ID astegiudiziarie.it 4293377
0
€ 5.860

Ti interessa questa vendita?

north_east

Clicca qui per essere indirizzato alla scheda sul sito di provenienza

Bene di astegiudiziarie.it