Riferimento annuncio 272762
Convento, Convitto o Istituto Similare Via Dei Mulini, 57100 Livorno (LI)
€ 607.680
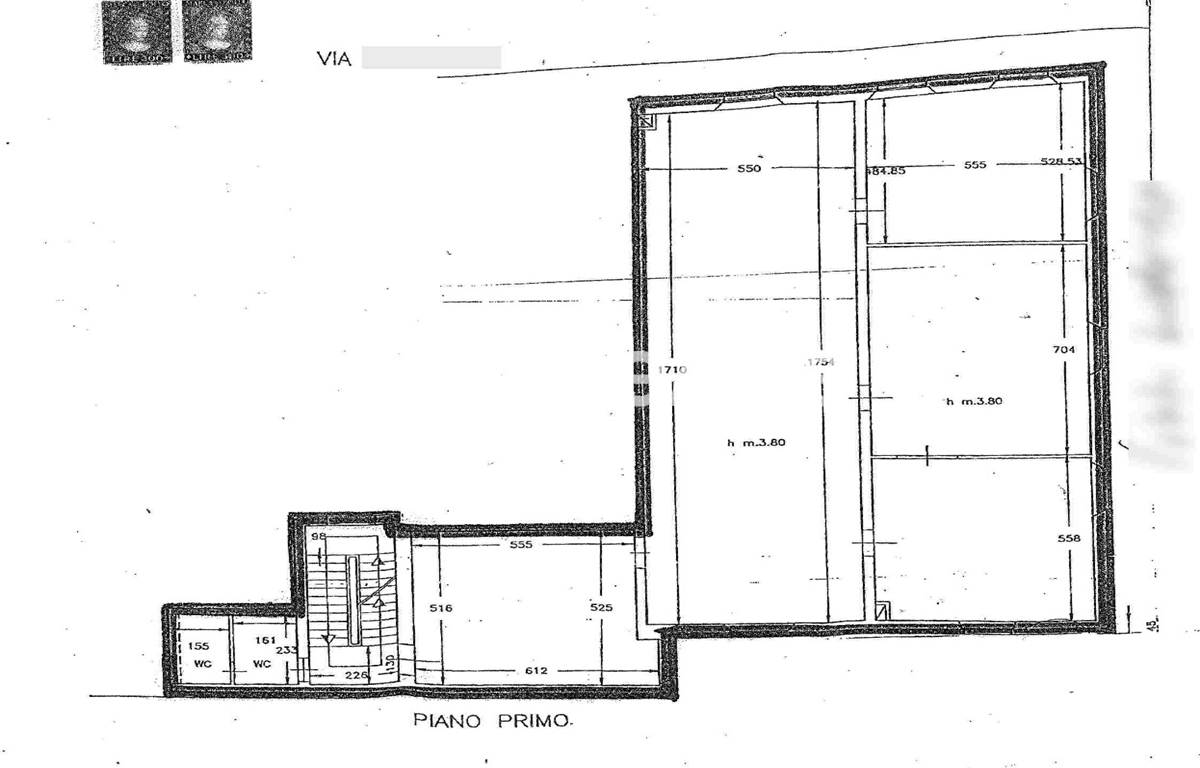
Edificio di vecchia costruzione disposto su tre piani fuori terra ed un piano interrato, privo di impianto ascensore, oggi in stato di abbandono, risulta privo di impianti funzionati.
L’immobile, oggi libero, è risultato nel corso degli anni occupato, senza titolo, da alcune associazioni culturali che hanno destinato l’immobile in parte a mensa sociale ed in parte a centro sociale autogestito.
Gli spazi interni sono caratterizzati da divisori in laterizio, intonacati e tinteggiati, pavimenti in gres e laminato in legno, finestre in parte in legno e in parte in alluminio. Sulle pareti sono presenti diversi graffiti segno evidente delle recenti occupazioni.
Nel centro di Livorno, l’edificio è ben collegato con i mezzi. A pochi minuti di distanza a piedi si trovano due mercati storici e vitali della città: il mercato di Piazza Cavallotti e il Mercato delle Vettovaglie. Documentazione in fase di analisi.
Old building with three above-ground floors and a basement, without an elevator system, currently in a state of abandonment and lacking functioning facilities.
The property, now vacant, has been occupied over the years, without permission, by some cultural associations that have used part of the building as a social cafeteria and part as a self-managed social center.
The interior spaces feature brick dividers, plastered and painted walls, tiled and laminate wood floors, and windows partly made of wood and partly of aluminum.
The walls display various graffiti as clear signs of recent occupations.
Documentation is currently being analyzed.
The property, now vacant, has been occupied over the years, without permission, by some cultural associations that have used part of the building as a social cafeteria and part as a self-managed social center.
The interior spaces feature brick dividers, plastered and painted walls, tiled and laminate wood floors, and windows partly made of wood and partly of aluminum.
The walls display various graffiti as clear signs of recent occupations.
Documentation is currently being analyzed.
| Tipologia di vendita | Privata |
|---|---|
| Modalità di vendita | Raccolta offerte |