highlight_off
Riferimento annuncio 322331 info

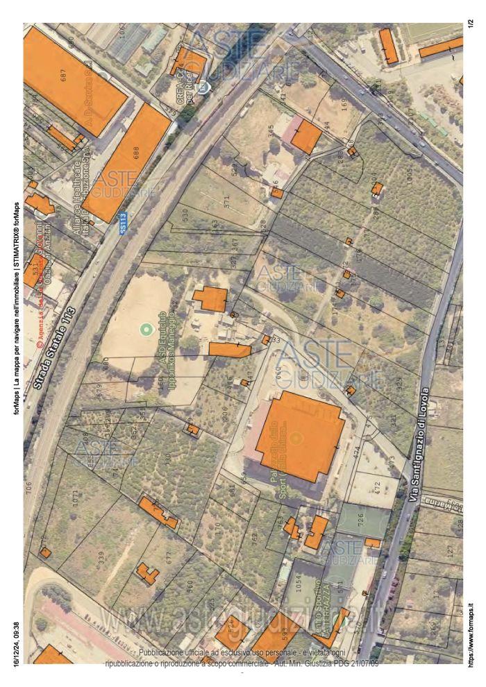
Centro sportivo Contrada Parisi, 90011 Bagheria (PA)

14750,00
0
€ 133.000
Vendita all'asta Senza incanto, con gara telematica sincrona mista - LOTTO UNICO: LOTTO B: piena e intera proprietà di un complesso edilizio in Bagheria (PA), c.da Parisi s.n.c., composto da fabbricato censito al foglio n. 5, particella 732, categoria D/6, magazzino censito al foglio n. 5, particella 733, categoria C/2, terreni censiti al foglio n. 5, particelle 160, 231, 247, 248, 327, 679 e 680. Il complesso edilizio insiste su un fondo di terreno esteso circa 14.750 mq.; superficie commerciale complessiva, relativa ai corpi di fabbrica regolarizzabili, 970,00 mq. PARZIALMENTE LIBERO. Prezzo base € 133.000,00 (offerta minima € 99.750,00). Data vendita 12/02/2026 ore 10:30. Professionista delegato alla vendita Avv. Laura Galasso - Email "info@dagape.it"; Cell. 3896777421; Tel. 091322911. Custode Giudiziario Avv. Laura Galasso - Email "info@dagape.it"; Cell. 3896777421; Tel. 091322911. Rif. Tribunale di Palermo - Esecuzione immobiliare post legge 80 n. 16/1998

Superficie 14750,00 mq
Vani
Bagni
Piano 0

Tipologia di vendita Giudiziaria
Modalità di vendita Sincrona mista
Termine presentazione offerte 01/01/1900 ore 00:00
Data e ora inizio gara 12/02/2026 ore 10:30
Codice ID astegiudiziarie.it 155136
14750,00
0
€ 133.000

Ti interessa questa vendita?

north_east

Clicca qui per essere indirizzato alla scheda sul sito di provenienza

Bene di astegiudiziarie.it