highlight_off
Riferimento annuncio 275064 info

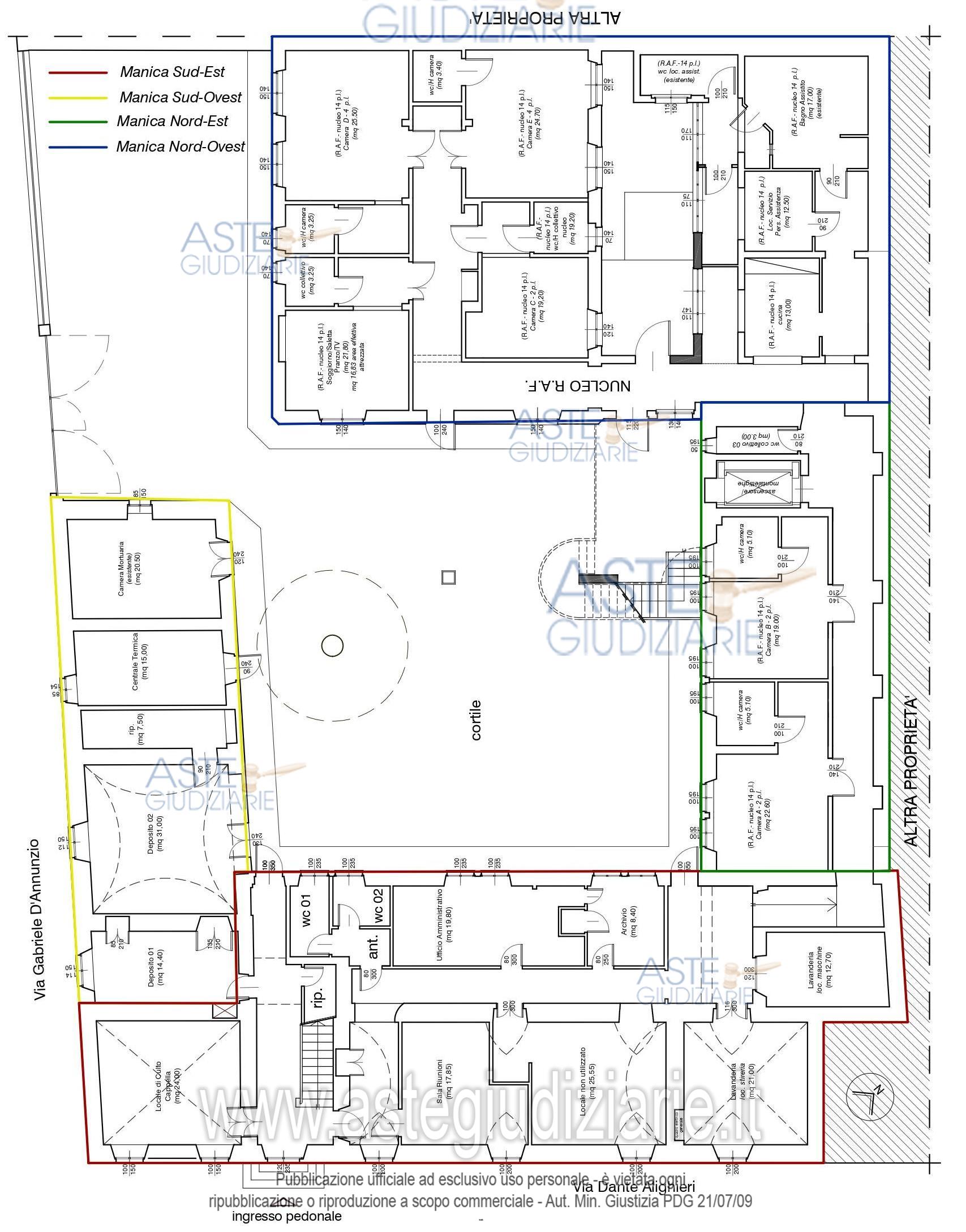
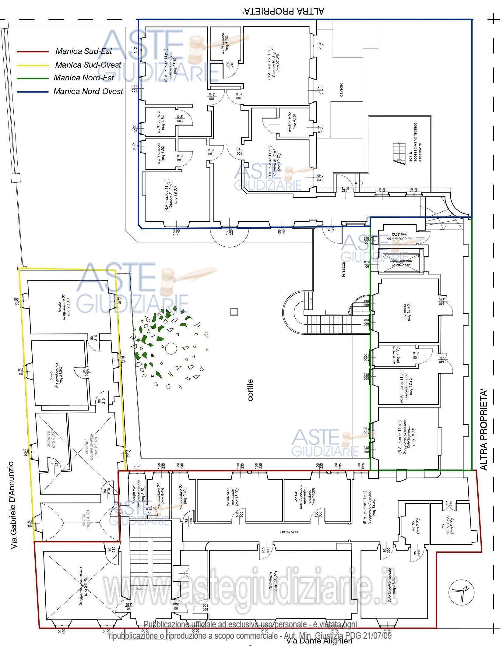
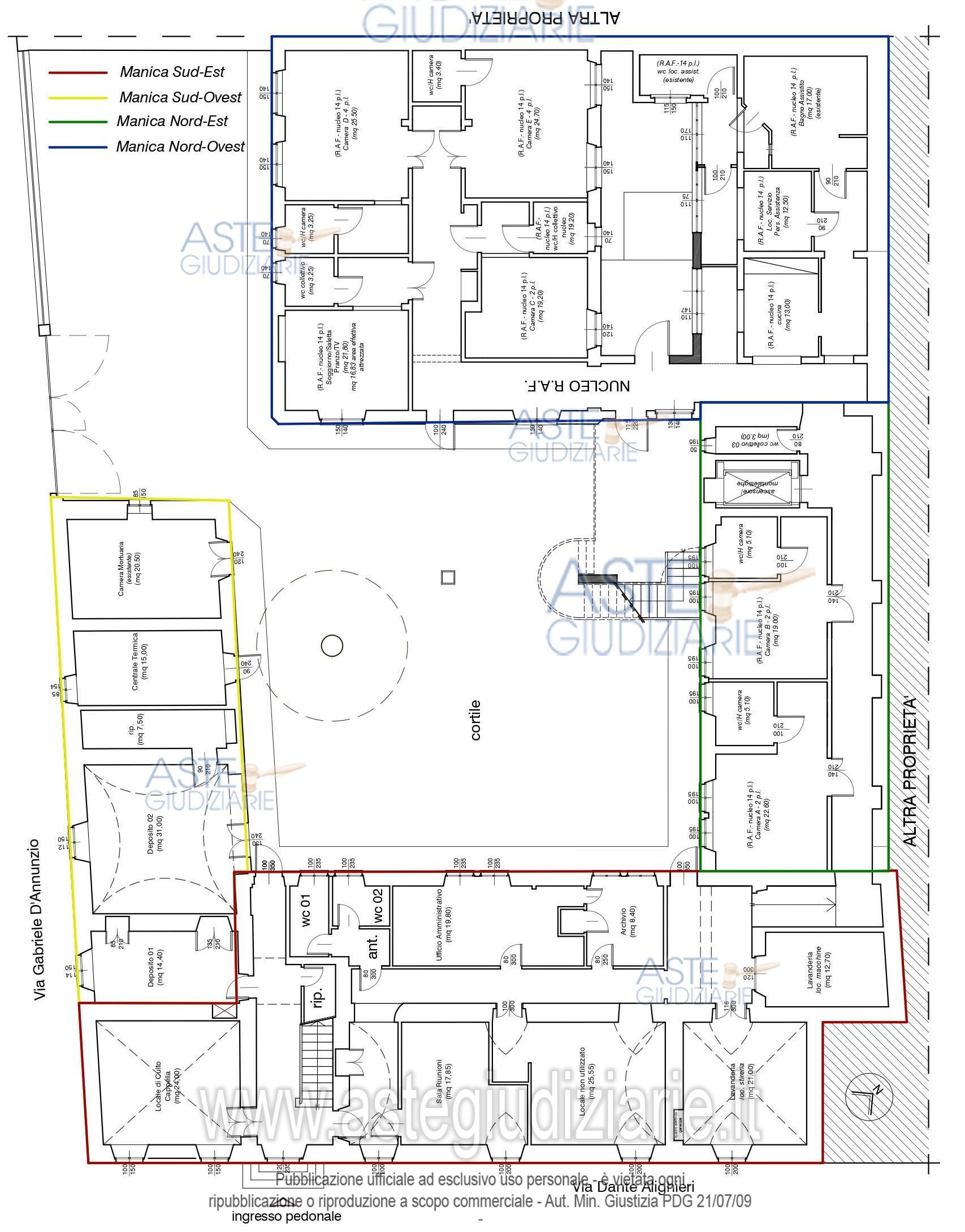
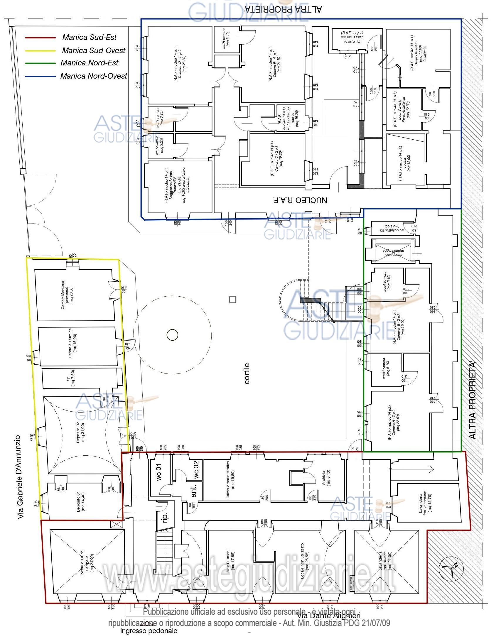
Casa di Cura via Dante Alighieri n. 80, 12074 Cortemilia (CN)

0
€ 210.000
Vendita all'asta Senza incanto, con gara telematica asincrona - LOTTO UNICO: Complesso immobiliare destinato all'accoglienza assistenziale per anziani. Prezzo base € 210.000,00 (offerta minima € 157.500,00). Data inizio operazioni di vendita: 10/02/2026 ore 09:00. Professionista delegato alla vendita Avv. Cristina Saglia - Email "cristina.saglia@gmail.com"; Tel. 0173 470 941. Liquidazione volontaria-giudiziale n. 106438/2023

Superficie mq
Vani
Bagni
Piano 0

Tipologia di vendita Giudiziaria
Modalità di vendita Asincrona telematica
Termine presentazione offerte 09/02/2026 ore 12:00
Data e ora inizio gara 10/02/2026 ore 09:00
Codice ID astegiudiziarie.it 4304088
0
€ 210.000

Ti interessa questa vendita?

north_east

Clicca qui per essere indirizzato alla scheda sul sito di provenienza

Bene di astegiudiziarie.it