highlight_off
Riferimento annuncio 281525 info

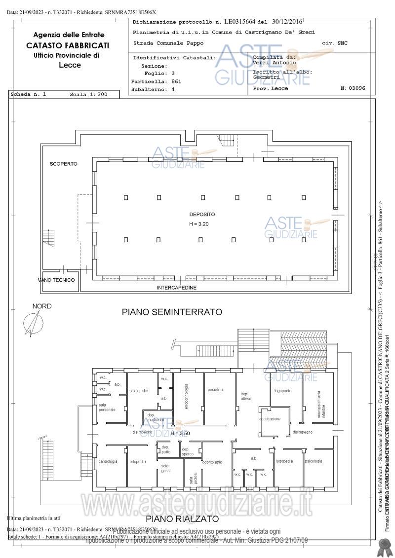
Casa di Cura Strada Comunale Pappo s.n.c., 73020 Castrignano de' Greci (LE)

0
€ 1.425.306
Vendita all'asta Senza incanto, con gara telematica asincrona - LOTTO UNICO: A) Residenza Socio Sanitaria Assistenziale a Castrignano de’ Greci (LE) quota 1/1 di piena proprietà, piano S1 – T – 1. B) Poliambulatorio a Castrignano de’ Greci (LE) quota 1/1 di piena proprietà, piano S1 – T. C) Amministrazione – Uffici a Castrignano de’ Greci (LE) quota 1/1 di piena proprietà, piano T. D) Terreno agricolo a Martano (LE) di 6.437,00 mq, quota 1/1 di piena proprietà, E) Terreno agricolo a Martano (LE) di 5.710,00 mq, quota 1/1 di piena proprietà,. Prezzo base € 1.425.306,00 (offerta minima € 1.068.980,00). Data inizio operazioni di vendita: 10/11/2025 ore 10:30. Professionista delegato alla vendita Avv. Andrea Rollo - Email "studiolegalerollo@virgilio.it"; Cell. 3356396309; Tel. 0832241588. Custode Giudiziario Avv. Andrea Rollo - Email "studiolegalerollo@virgilio.it"; Cell. 3356396309; Tel. 0832241588. Rif. Tribunale di Lecce - Esecuzione immobiliare post legge 80 n. 54/2023

Superficie mq
Vani
Bagni
Piano 0

Tipologia di vendita Giudiziaria
Modalità di vendita Asincrona telematica
Termine presentazione offerte 03/11/2025 ore 12:00
Data e ora inizio gara 10/11/2025 ore 10:30
Codice ID astegiudiziarie.it 4309622
0
€ 1.425.306

Ti interessa questa vendita?

north_east

Clicca qui per essere indirizzato alla scheda sul sito di provenienza

Bene di astegiudiziarie.it