highlight_off
Riferimento annuncio 309921 info

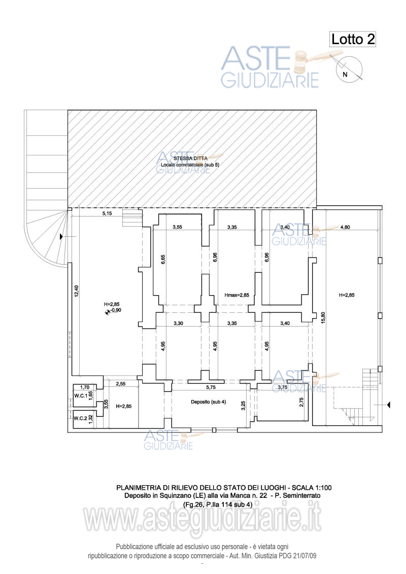
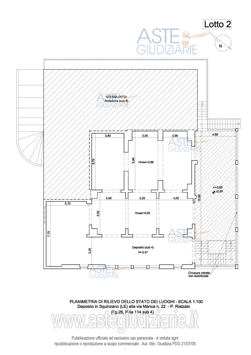
Capannone Via M. Manca, n. 22, 73018 Squinzano (LE)

0
€ 46.312
Vendita all'asta Senza incanto, con gara telematica asincrona - LOTTO 2: Piena proprietà per la quota di 1000/1000 di deposito e locale commerciale siti in Squinzano, alla Via M. Manca n. 22. Prezzo base € 46.311,75 (offerta minima € 34.733,81). Data inizio operazioni di vendita: 19/03/2026 ore 15:00. Professionista delegato alla vendita Avv. Andrea Francesco Pezzuto - Email "andrepezzuto@virgilio.it"; Cell. 3483331922; Tel. 08321815193. Custode Giudiziario Avv. Andrea Francesco Pezzuto - Email "andrepezzuto@virgilio.it"; Cell. 3483331922; Tel. 08321815193. Rif. Tribunale di Lecce - Esecuzione immobiliare post legge 80 n. 85/2004

Superficie mq
Vani
Bagni
Piano 0

Tipologia di vendita Giudiziaria
Modalità di vendita Asincrona telematica
Termine presentazione offerte 01/01/1900 ore 00:00
Data e ora inizio gara 19/03/2026 ore 15:00
Codice ID astegiudiziarie.it 4331668
0
€ 46.312

Ti interessa questa vendita?

north_east

Clicca qui per essere indirizzato alla scheda sul sito di provenienza

Bene di astegiudiziarie.it