highlight_off
Riferimento annuncio 56406 info

Capannone Via Talete, 09047 Selargius CA, Italia, 09047 Selargius (CA)

217,70
0
€ 113.526
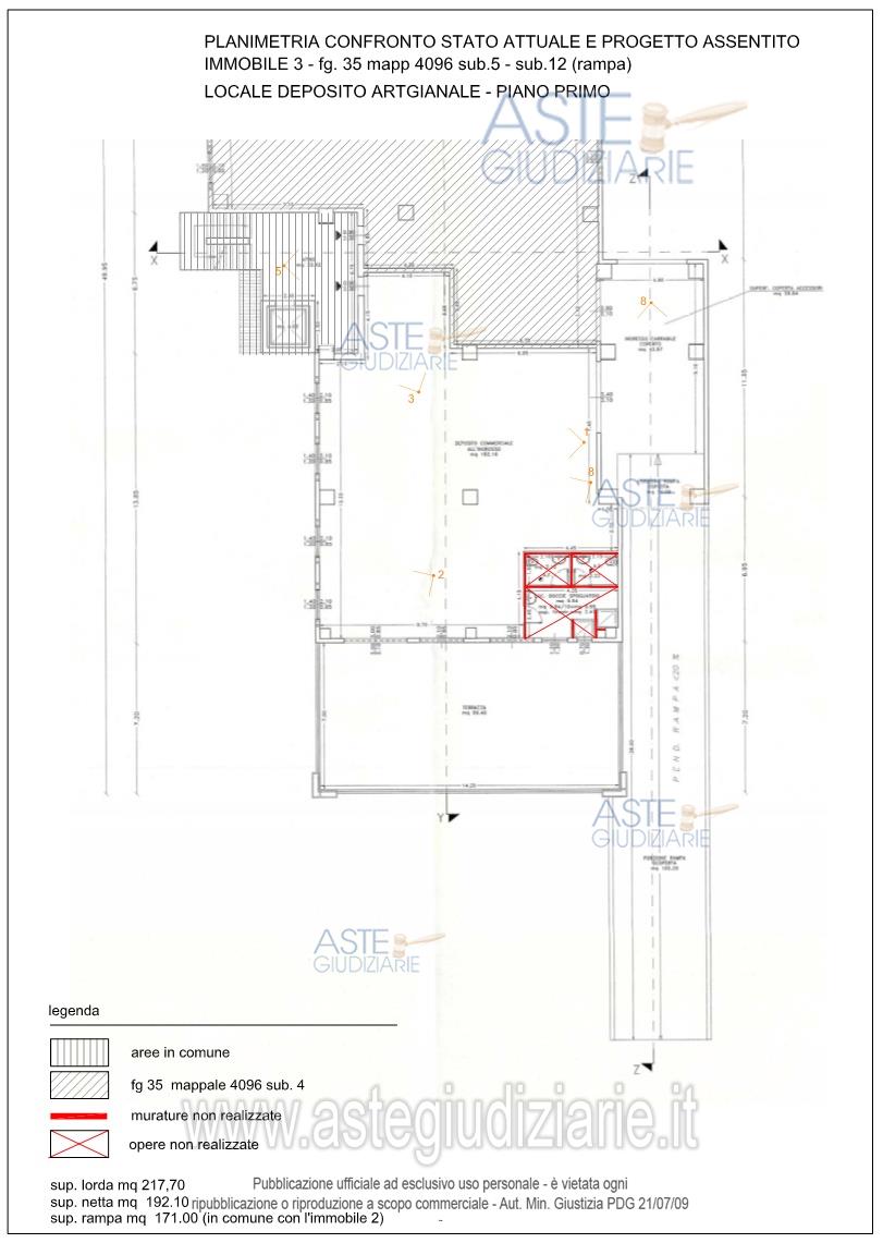
Vendita all'asta Senza incanto, con gara telematica asincrona - LOTTO 3: Intera Proprietà -Unità immobiliare sita in Comune di Selargius (CA) Via Talete, censita al N.C.E.U. al fg 35 mappale 4096 sub 5,ubicato al piano primo nella porzione a destra della scala esterna del maggior fabbricato (guardandolo dalla via Talete).L’immobile è destinato a deposito commerciale all’ingrosso; si sviluppa su una superficie lorda di mq 217,70 (netta mq 192,10) ed una terrazza della superficie di 99,40 mq. L’altezza interna è di 4,80 m .Immobile non risulta completato. Prezzo base € 113.526,00 (offerta minima € 85.144,50). Data inizio operazioni di vendita: 13/01/2026 ore 16:00. Giudice Dott. Silvia Cocco. Professionista delegato alla vendita Avv. Marco Di Fortunato - Cell. 3356185295. Custode Giudiziario Ivg Di Cagliari - Email "ivg.visiteimmobili@tiscali.it"; Tel. 0702299036. Rif. Tribunale di Cagliari - Esecuzione immobiliare post legge 80 n. 266/2015

Superficie 217,70 mq
Vani
Bagni
Piano 0

Tipologia di vendita Giudiziaria
Modalità di vendita Asincrona telematica
Termine presentazione offerte 12/01/2026 ore 16:00
Data e ora inizio gara 13/01/2026 ore 16:00
Codice ID astegiudiziarie.it 4177043
217,70
0
€ 113.526

Ti interessa questa vendita?

north_east

Clicca qui per essere indirizzato alla scheda sul sito di provenienza

Bene di astegiudiziarie.it