highlight_off
Riferimento annuncio 322110 info

Capannone Via Viella San Pietro 17, 80034 Marigliano (NA)

43,00
0
€ 18.000
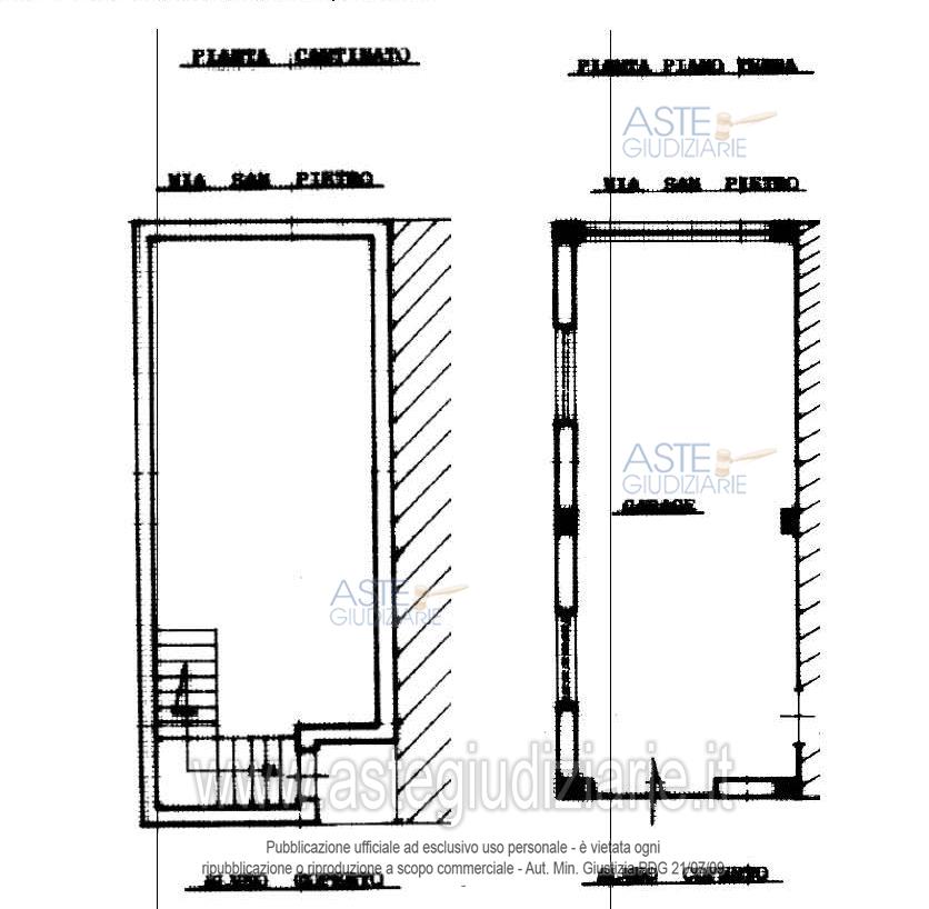
Vendita all'asta Senza incanto, con gara telematica asincrona - LOTTO 5: Locale deposito di 43 metri quadri, composto da locale terraneo con accesso indipendente diretto da strada, nonché dal limitrofo androne di ingresso del fabbricato di afferenza, alla via Nuova Isonzo. Il locale, che presenta una conformazione planimetrica di tipo rettangolare e che oltre al varco di accesso è dotato di finestra sul retro (con affaccio su via San Pietro) è totalmente privo di partizioni e parzialmente di dotazioni impiantistiche e quasi totalmente privo di finiture, fatta eccezio. Prezzo base € 18.000,00 (offerta minima € 13.500,00). Data inizio operazioni di vendita: 05/03/2026 ore 10:00. Giudice Dott. Rosa Napolitano. Custode Giudiziario Aste Giudiziarie Inlinea Spa - Email "vendite@astegiudiziarie.it"; Tel. 0586 201480. Curatore Dott. Monica Osteria. Rif. Tribunale di Nola - Fallimentare (nuovo rito) n. 77/2011
Vendita all'asta Senza incanto, con gara telematica asincrona - LOTTO 5: Lokaler 43 Quadratmeter großer Lagerraum, bestehend aus einem Untergeschoss mit eigenem Zugang direkt von der Straße sowie dem benachbarten Eingangsbereich des zugehörigen Gebäudes, an der Via Nuova Isonzo. Der Raum hat eine rechteckige Grundrissform und verfügt neben dem Zugang über ein Fenster auf der Rückseite (mit Blick auf die Via San Pietro), ist völlig frei von Raumteilern und teilweise von technischen Anlagen ausgestattet und fast vollständig ohne Oberflächen, abgesehen von denen, die nach dem Entfernen der vorhandenen Raumteiler und technischen Anlagen verbleiben. Prezzo base € 18.000,00 (offerta minima € 13.500,00). Data inizio operazioni di vendita: 05/03/2026 ore 10:00. Giudice Dott. Rosa Napolitano. Custode Giudiziario Aste Giudiziarie Inlinea Spa - Email "vendite@astegiudiziarie.it"; Tel. 0586 201480. Curatore Dott. Monica Osteria. Rif. Tribunale di Nola - Fallimentare (nuovo rito) n. 77/2011
Vendita all'asta Senza incanto, con gara telematica asincrona - LOTTO 5: A 43-square meter storage space, composed of an underground room with independent access directly from the street, as well as from the adjacent entrance hallway of the related building, on Via Nuova Isonzo. The space, which has a rectangular floor plan and besides the entrance opening, is equipped with a window at the back (overlooking Via San Pietro), is completely devoid of partitions and partially of facilities and almost completely lacking finishes, except for those that remain from the removal of previous partitions and facilities. Prezzo base € 18.000,00 (offerta minima € 13.500,00). Data inizio operazioni di vendita: 05/03/2026 ore 10:00. Giudice Dott. Rosa Napolitano. Custode Giudiziario Aste Giudiziarie Inlinea Spa - Email "vendite@astegiudiziarie.it"; Tel. 0586 201480. Curatore Dott. Monica Osteria. Rif. Tribunale di Nola - Fallimentare (nuovo rito) n. 77/2011
Vendita all'asta Senza incanto, con gara telematica asincrona - LOTTO 5: Dépôt local de 43 mètres carrés, composé d'une pièce en sous-sol avec un accès indépendant direct depuis la rue, ainsi que du vestibule voisin de l'entrée du bâtiment attenant à la Via Nuova Isonzo. La pièce, qui présente une configuration rectangulaire en plan et qui, en plus de l'ouverture d'accès, est dotée d'une fenêtre à l'arrière (donnant sur la rue San Pietro), est totalement dépourvue de cloisons et partiellement d'équipements d'installation, presque entièrement sans finitions, à l'exception de celles qui subsistent de la suppression des cloisons et des équipements d'installation précédents. Prezzo base € 18.000,00 (offerta minima € 13.500,00). Data inizio operazioni di vendita: 05/03/2026 ore 10:00. Giudice Dott. Rosa Napolitano. Custode Giudiziario Aste Giudiziarie Inlinea Spa - Email "vendite@astegiudiziarie.it"; Tel. 0586 201480. Curatore Dott. Monica Osteria. Rif. Tribunale di Nola - Fallimentare (nuovo rito) n. 77/2011
Vendita all'asta Senza incanto, con gara telematica asincrona - LOTTO 5: Помещение площадью 43 квадратных метра, состоящее из подземного помещения с отдельным входом прямо с улицы, а также прилегающего вестибюля входа в соответствующее здание на улице Нова Исонцо. Помещение имеет прямоугольную планировку и, помимо проема для входа, оборудовано окном на задней стороне (выводящим на улицу Сан-Пьетро), не имеет разделения на отдельные участки и частично оборудовано инженерными системами, почти полностью лишено отделочных работ, за исключением тех, что остались после удаления предыдущих разделений и инженерных систем. Prezzo base € 18.000,00 (offerta minima € 13.500,00). Data inizio operazioni di vendita: 05/03/2026 ore 10:00. Giudice Dott. Rosa Napolitano. Custode Giudiziario Aste Giudiziarie Inlinea Spa - Email "vendite@astegiudiziarie.it"; Tel. 0586 201480. Curatore Dott. Monica Osteria. Rif. Tribunale di Nola - Fallimentare (nuovo rito) n. 77/2011

Superficie 43,00 mq
Vani
Bagni
Piano 0

Tipologia di vendita Giudiziaria
Modalità di vendita Asincrona telematica
Termine presentazione offerte 04/03/2026 ore 12:00
Data e ora inizio gara 05/03/2026 ore 10:00
Codice ID astegiudiziarie.it 4335636
43,00
0
€ 18.000

Ti interessa questa vendita?

north_east

Clicca qui per essere indirizzato alla scheda sul sito di provenienza

Bene di astegiudiziarie.it