highlight_off
Riferimento annuncio 229487 info

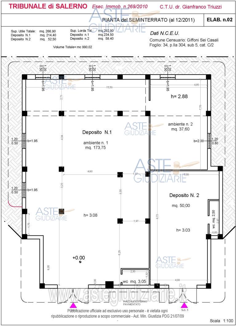
Capannone FRAZ.CAPITIGNANO VIA SERRONI N.11, 84090 Giffoni Sei Casali (SA)

1,00
243,00
0
€ 9.810
Vendita all'asta Senza incanto, con gara telematica asincrona - LOTTO 1: Deposito suddiviso in due distinti locali, completamente fuori terra su un lato e seminterrato sugli altri tre lati. Prezzo base € 9.810,00 (offerta minima € 7.360,00). Data inizio operazioni di vendita: 24/06/2026 ore 14:00. Professionista delegato alla vendita: Avv. Matteo Baselice. Custode Giudiziario: Avv. Matteo Baselice - Email "basmat@libero.it". Rif. Tribunale di Salerno - Esecuzione immobiliare post legge 80 n. 269/2010

Superficie 243,00 mq
Vani 1,00
Bagni
Piano 0

Tipologia di vendita Giudiziaria
Modalità di vendita Asincrona telematica
Termine presentazione offerte 23/06/2026 ore 12:00
Data e ora inizio gara 24/06/2026 ore 14:00
Codice ID astegiudiziarie.it 1463871
1,00
243,00
0
€ 9.810

Ti interessa questa vendita?

north_east

Clicca qui per essere indirizzato alla scheda sul sito di provenienza

Bene di astegiudiziarie.it