highlight_off
Riferimento annuncio 275625 info

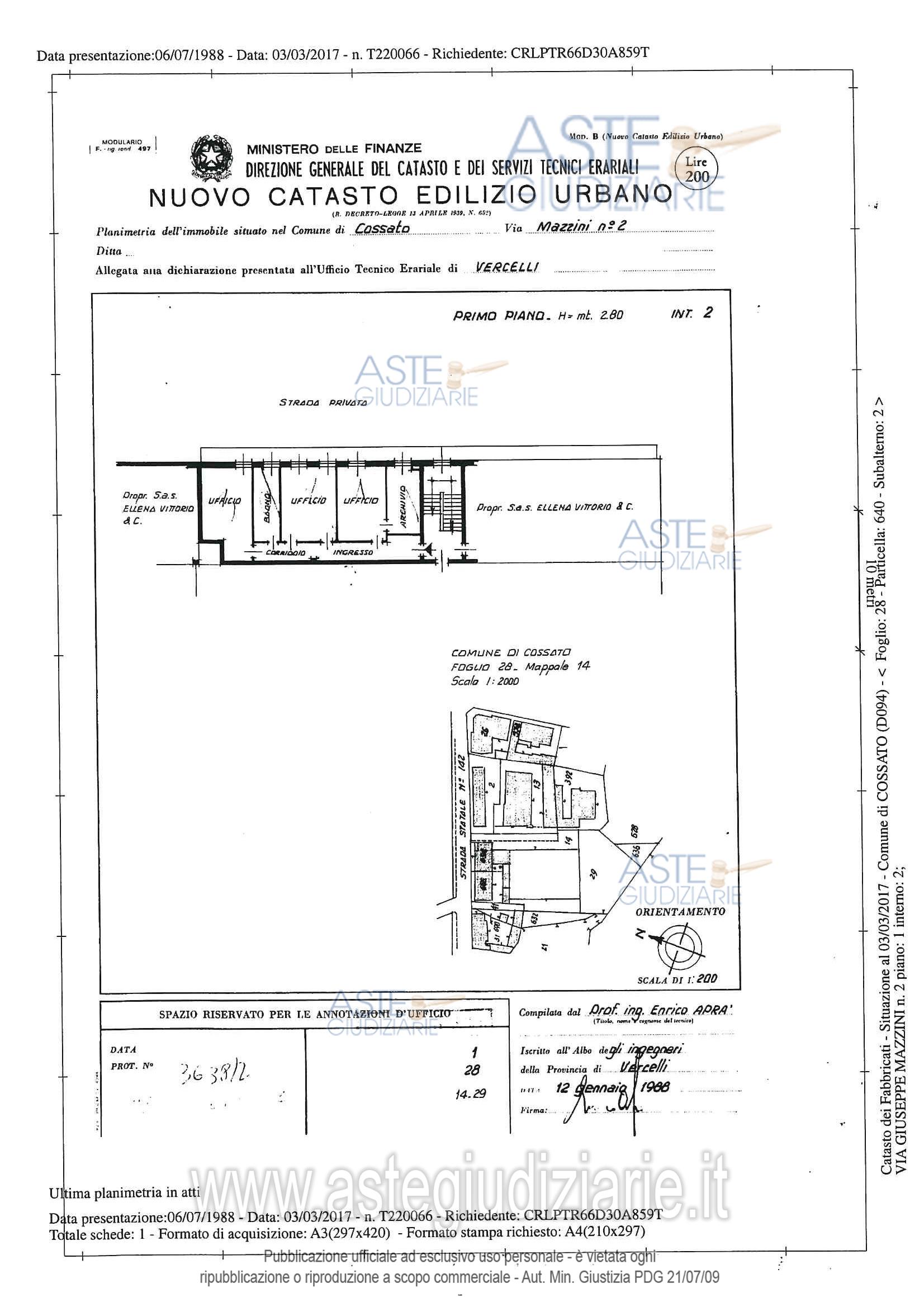
Capannone Via mazzini 2, 13836 Cossato (BI)

4295,00
0
€ 164.531
Vendita all'asta Senza incanto, con gara telematica asincrona - LOTTO 19: Locale ad uso magazzino; Locale ad uso negozio; Locali ad uso magazzino e controllo peso, al piano seminterrato; Locale esposizione, disimpegno, due uffici, servizio igienico con antibagno; Saloni in contiguità a quanto sopra, e precisamente: al piano terreno ampi saloni ad uso magazzino comprendenti locali di esposizione e vendita materiali, varie scale di collegamento con soppalco, servizi igienici, vano scala di collegamento ad alloggio e ufficio, corpo addossato destinato a deposito/tettoia, con pertinenziali aree esterne; al piano primo ampio locale uso magazzino e, con accesso da vano scale indipendente proveniente dal piano terreno e direttamente collegato con l’esterno, unità ad uso residenziale (alloggio del custode) composta da ingresso, disimpegno, cucina, soggiorno, due camere, bagno, balcone, oltre ad unità ad uso ufficio composta da ingresso, disimpegno, archivio, tre vani ufficio, bagno, balcone; Lotto di terreno contiguo di mq. 400. Prezzo base € 164.531,25 (offerta minima € 123.398,44). Data inizio operazioni di vendita: 21/07/2026 ore 15:00. Giudice: Dott. Maria Donata Garambone. Professionista delegato alla vendita: Not. Roberto Broglia - Email "rbroglia.3@notariato.it"; Tel. 015/8497501. Curatore: Rag. Marco Quadrelli - Email "marco@consultingpartners.it"; Tel. 015/980555. Rif. Tribunale di Biella - Fallimento n. 1/2017

Superficie 4295,00 mq
Vani
Bagni
Piano 0

Tipologia di vendita Giudiziaria
Modalità di vendita Asincrona telematica
Termine presentazione offerte 01/01/1900 ore 00:00
Data e ora inizio gara 21/07/2026 ore 15:00
Codice ID astegiudiziarie.it 4304735
4295,00
0
€ 164.531

Ti interessa questa vendita?

north_east

Clicca qui per essere indirizzato alla scheda sul sito di provenienza

Bene di astegiudiziarie.it