highlight_off
Riferimento annuncio 315267 info

Capannone V. Appia, 75, 04012 Cisterna di Latina LT, Italia, 04012 Cisterna di Latina (LT)

100,00
0
€ 62.930
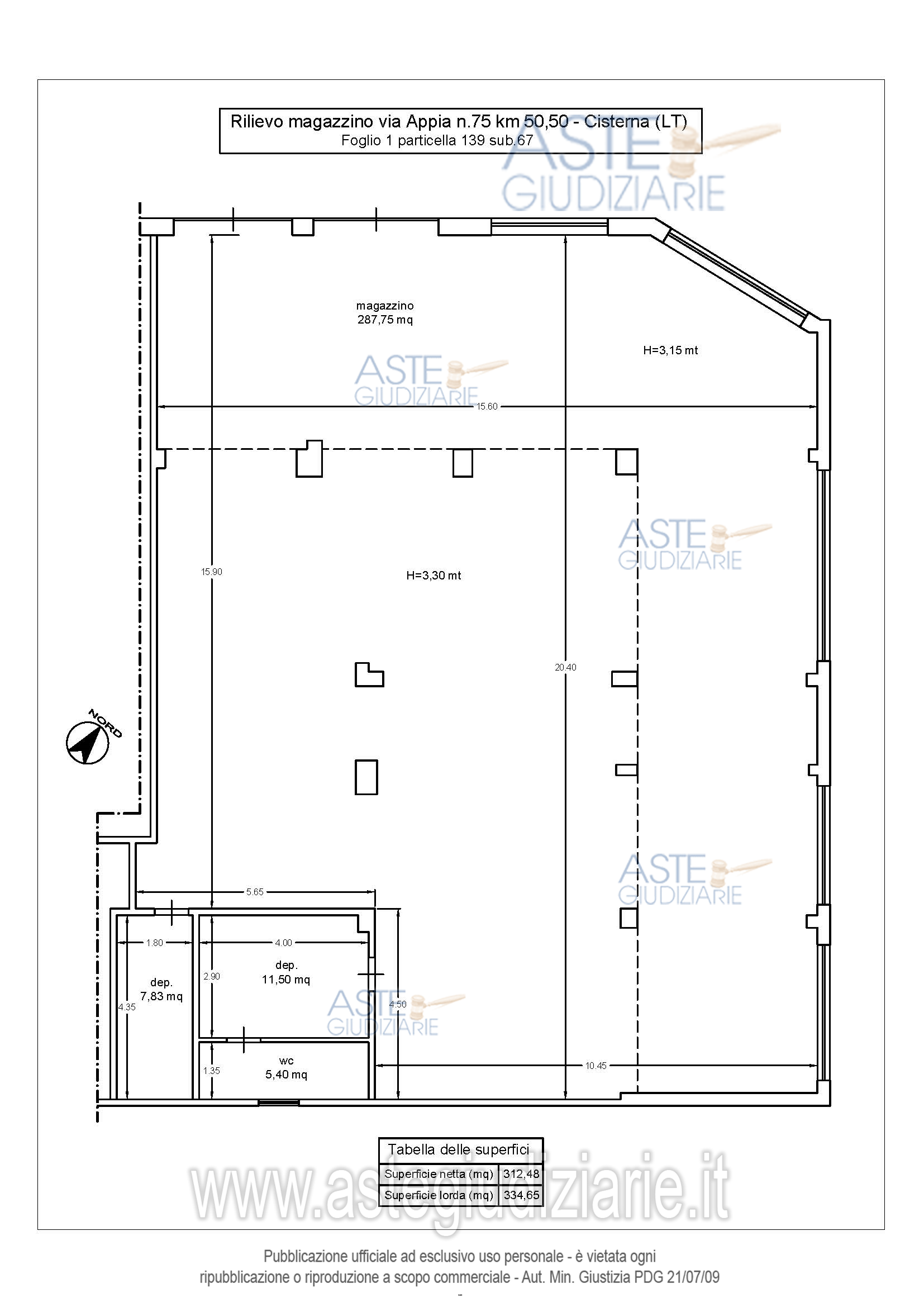
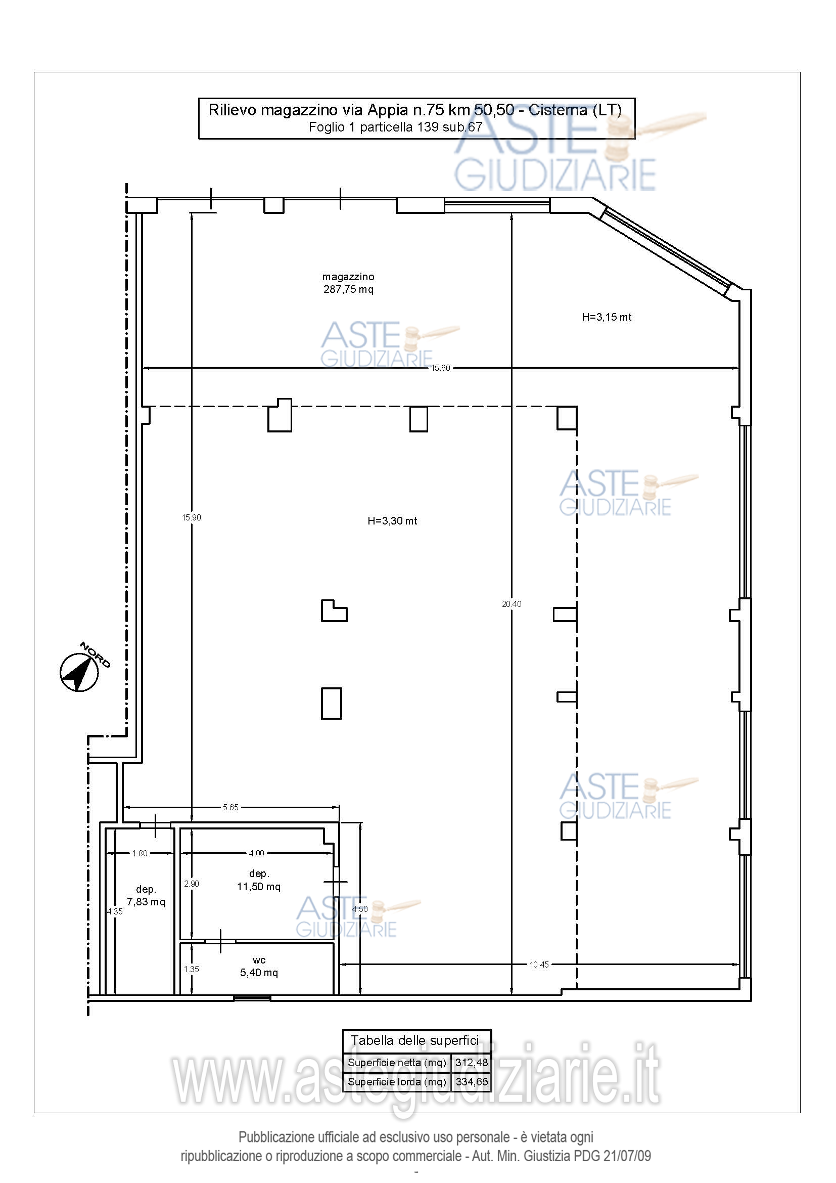
Vendita all'asta Senza incanto, con gara telematica asincrona - LOTTO 2: Piena ed esclusiva proprietà di locale magazzino ubicato a Cisterna di Latina (LT) - via Appia n.75 km 50,50, interno B1, piano S1 costituito da un ampio locale magazzino, depositi ed un bagno. Prezzo base € 62.930,00 (offerta minima € 47.198,00). Data inizio operazioni di vendita: 26/11/2025 ore 10:00. Giudice Alessandra Lulli. Professionista delegato alla vendita Avv. Diego Maria Santoro - Email "legalisantorofisichella@gmail.com"; Cell. 3804158875. Custode Giudiziario Avv. Diego Maria Santoro - Email "legalisantorofisichella@gmail.com"; Cell. 3804158875. Rif. Tribunale di Latina - Espropriazione immobiliare (cartabia) n. 25/2024

Superficie 100,00 mq
Vani
Bagni
Piano 0

Tipologia di vendita Giudiziaria
Modalità di vendita Asincrona telematica
Termine presentazione offerte 01/01/1900 ore 00:00
Data e ora inizio gara 26/11/2025 ore 10:00
Codice ID astegiudiziarie.it 4335896
100,00
0
€ 62.930

Ti interessa questa vendita?

north_east

Clicca qui per essere indirizzato alla scheda sul sito di provenienza

Bene di astegiudiziarie.it