highlight_off
Riferimento annuncio 315266 info

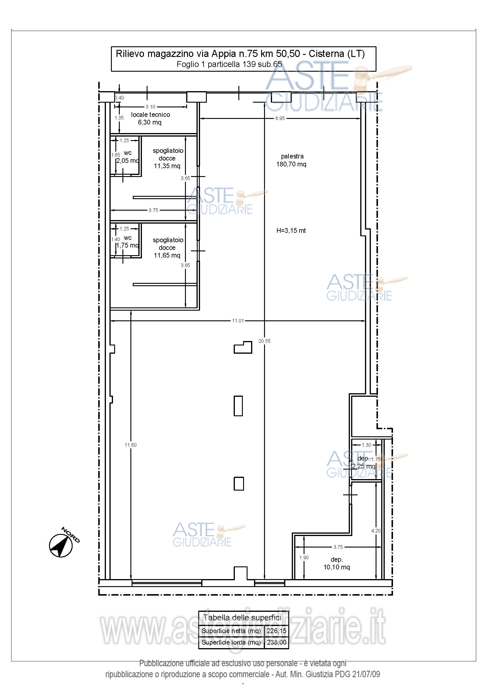
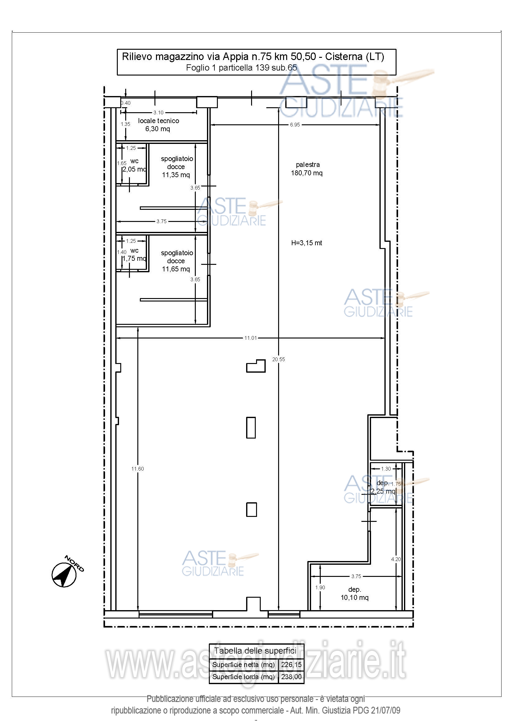
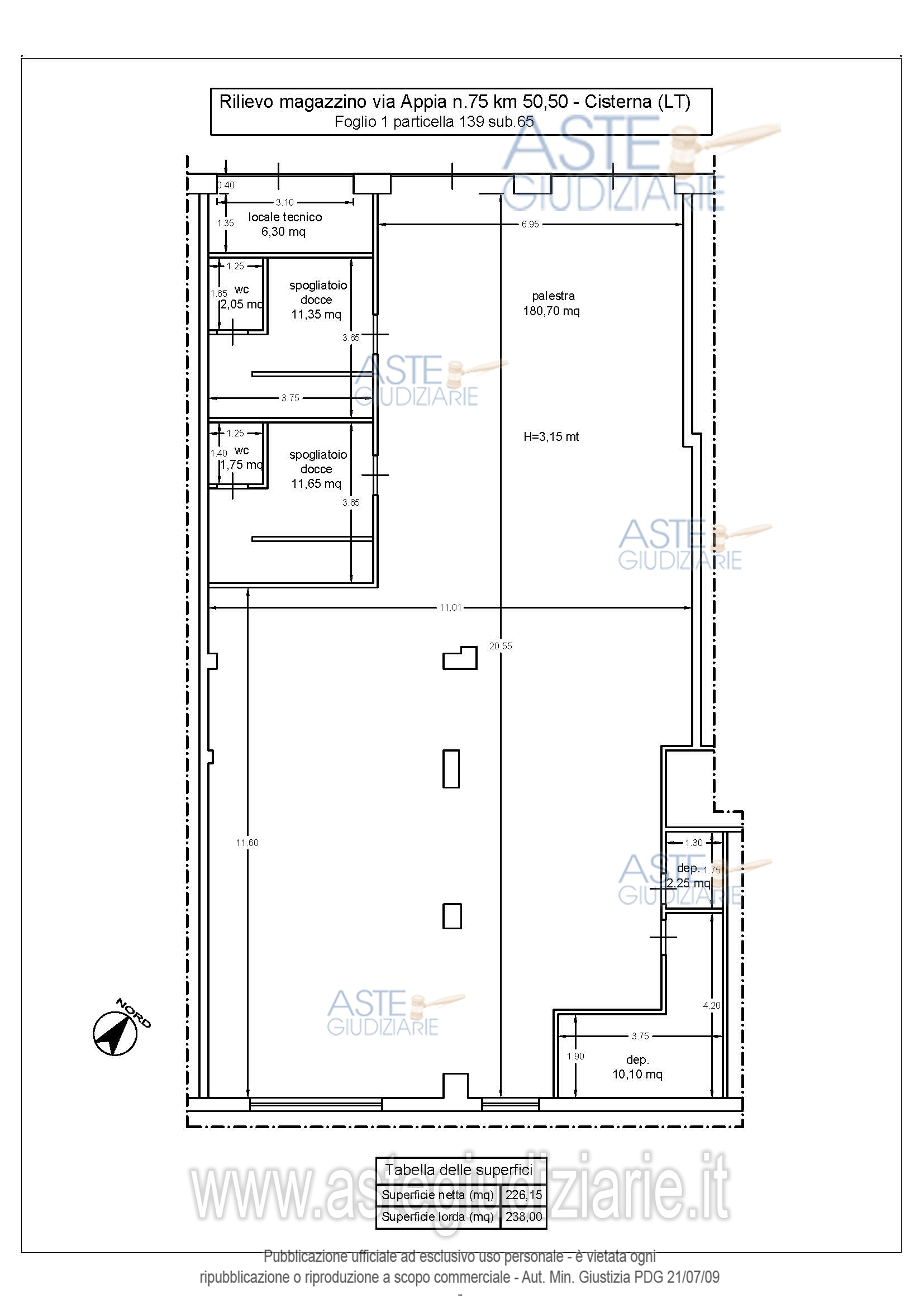
Capannone V. Appia, 75, 04012 Cisterna di Latina LT, Italia, 04012 Cisterna di Latina (LT)

100,00
0
€ 51.300
Vendita all'asta Senza incanto, con gara telematica asincrona - LOTTO 1: Piena ed esclusiva proprietà di locale magazzino ubicato a Cisterna di Latina (LT) - via Appia n. 75 km 50,50, interno A1, piano S1 costituito da un ampio locale palestra, deposti, spogliatoi e bagni. Prezzo base € 51.300,00 (offerta minima € 1.100,00). Data inizio operazioni di vendita: 19/05/2026 ore 11:00. Giudice Alessandra Lulli. Professionista delegato alla vendita Avv. Diego Maria Santoro - Email "legalisantorofisichella@gmail.com"; Cell. 3804158875. Custode Giudiziario Avv. Diego Maria Santoro - Email "legalisantorofisichella@gmail.com"; Cell. 3804158875. Rif. Tribunale di Latina - Espropriazione immobiliare (cartabia) n. 25/2024

Superficie 100,00 mq
Vani
Bagni
Piano 0

Tipologia di vendita Giudiziaria
Modalità di vendita Asincrona telematica
Termine presentazione offerte 01/01/1900 ore 00:00
Data e ora inizio gara 19/05/2026 ore 11:00
Codice ID astegiudiziarie.it 4335895
100,00
0
€ 51.300

Ti interessa questa vendita?

north_east

Clicca qui per essere indirizzato alla scheda sul sito di provenienza

Bene di astegiudiziarie.it