highlight_off
Riferimento annuncio 330931 info

Cantina o Solaio Via dell'Orsa Maggiore, 66, 00144 Roma RM, Italia, 00100 Roma (RM)

1,00
51,00
0
€ 917.700
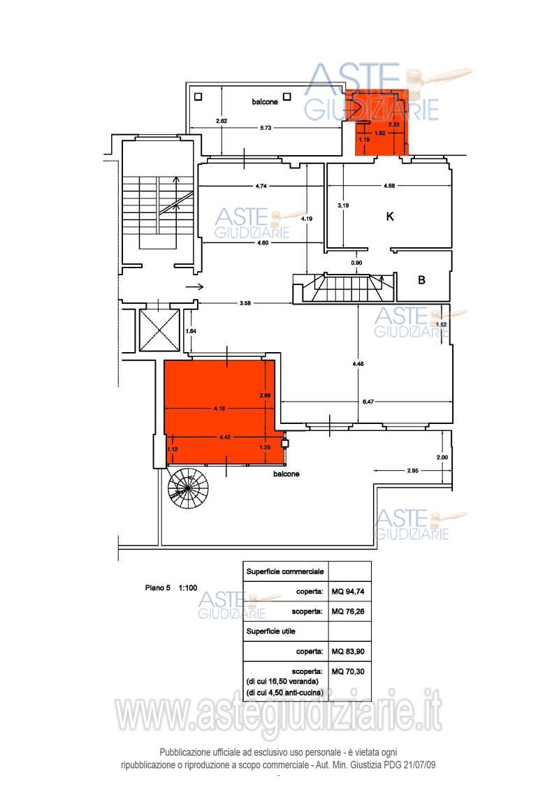
Vendita all'asta Senza incanto, con gara telematica asincrona - LOTTO UNICO: Piena proprietà su appartamento sito in Roma, Via dell’Orsa Maggiore n. 66, edificio A4, scala B, interno 10, piano (attico) 5-6 comunicanti con scala interna, oltre lastrico solare posto al 7° piano comunicante con il piano 6° a mezzo di scala esterna. Cantina e posto auto posti al piano S1. Compendio occupato dalla parte esecutata che vi abita. Non potrà emettersi ordine di liberazione prima del decreto di trasferimento. Prezzo base € 917.700,00 (offerta minima € 688.275,00). Data inizio operazioni di vendita: 21/05/2026 ore 14:00. Giudice: Dott. Giuseppe Lauropoli. Professionista delegato alla vendita: Avv. Rosita Vallone. Custode Giudiziario: Ivg Di Roma Srl - Email "pvp@visiteivgroma.it"; Tel. 06/83751500. Rif. Tribunale di Roma - Espropriazione immobiliare (cartabia) n. 1333/2023

Superficie 51,00 mq
Vani 1,00
Bagni
Piano 0

Tipologia di vendita Giudiziaria
Modalità di vendita Asincrona telematica
Termine presentazione offerte 01/01/1900 ore 00:00
Data e ora inizio gara 21/05/2026 ore 14:00
Codice ID astegiudiziarie.it 4346056
1,00
51,00
0
€ 917.700

Ti interessa questa vendita?

north_east

Clicca qui per essere indirizzato alla scheda sul sito di provenienza

Bene di astegiudiziarie.it