highlight_off
Riferimento annuncio 216367 info

Azienda agricola Località Olmobello, 04012 Cisterna di Latina (LT)

0
€ 583.200
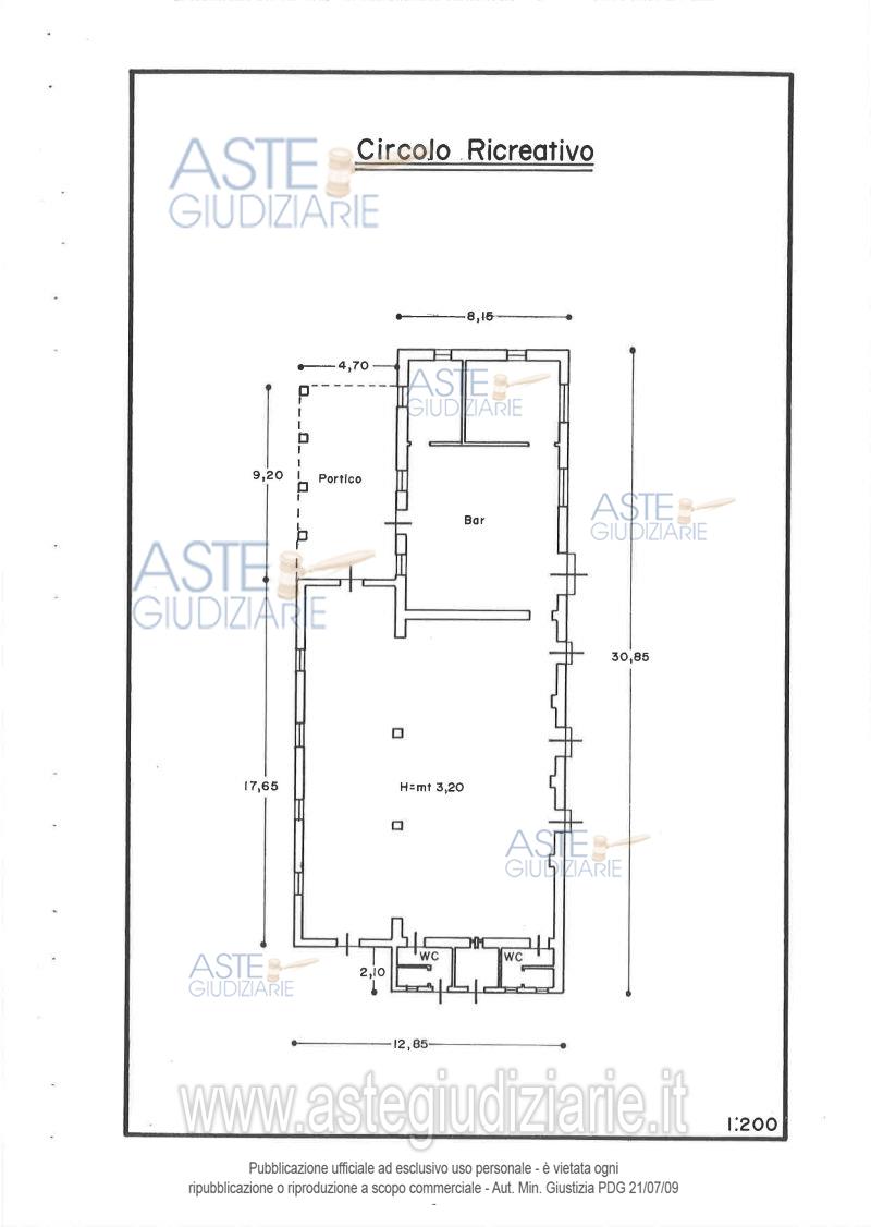
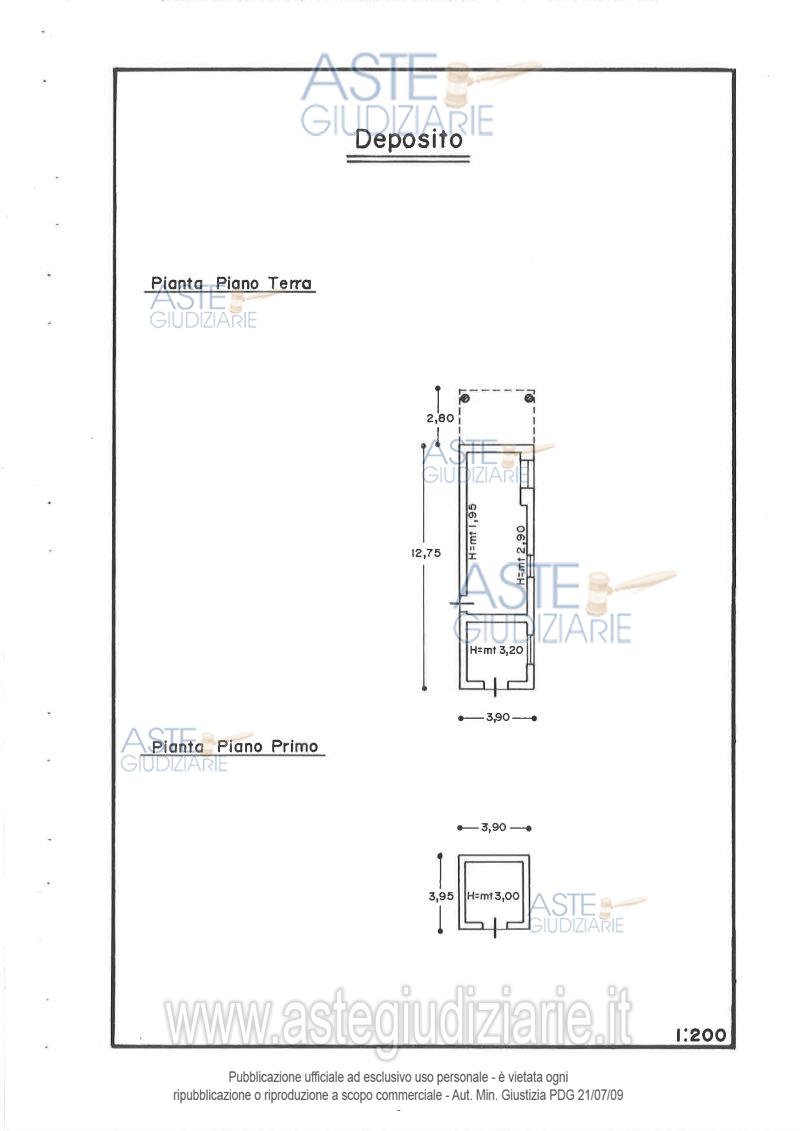
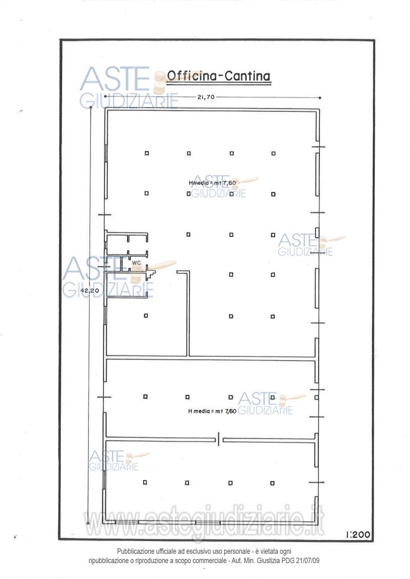
Vendita in attesa dell'emissione del nuovo bando d'asta. LOTTO 1: Borgo agricolo nel quale insistono 34 unità immobiliari con diverse destinazioni d'uso: ristorante e abitazione, magazzino e abitazione, cappella privata, ufficio e abitazione, circolo ricreativo, asilo e abitazione, officina e cantina, magazzino, oltre a due porcilaie, tre pollai, due stalle di cui una con sovrastanti appartamenti, una sala mungitura, un fienile, un deposito ed una centrale termica. Classe energetica "G". Ultimo prezzo base € 583.200,00 (offerta minima € 583.200,00). Professionista delegato alla vendita Not. Fulvio Mecenate. Liquidazione coatta n. 126/1993

Superficie mq
Vani
Bagni
Piano 0

Tipologia di vendita Giudiziaria
Modalità di vendita Presso il venditore
Termine presentazione domande 01/01/1900 ore 00:00
Data e ora inizio gara 28/02/2024 ore 10:00
Codice ID astegiudiziarie.it 390164
0
€ 583.200

Ti interessa questa vendita?

north_east

Clicca qui per essere indirizzato alla scheda sul sito di provenienza

Bene di astegiudiziarie.it