highlight_off
Riferimento annuncio 311234 info

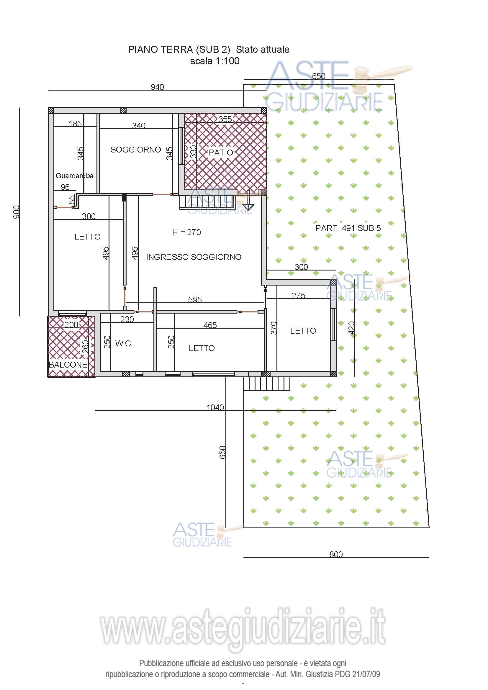
Appartamento via Tommaso Campanella, 29, 87040 Zumpano (CS)

6,00
138,81
0
€ 96.696
Vendita all'asta Senza incanto, con gara telematica sincrona mista - LOTTO UNICO: Appartamento sito al piano terra e locale al piano seminterrato di un fabbricato. Prezzo base € 96.696,00 (offerta minima € 72.522,50). Data vendita 05/02/2026 ore 10:45. Giudice Dott. Assunta Gioia. Professionista delegato alla vendita Avv. Rosa Masi - Email "avv.rosamasi@libero.it"; Tel. 0984390596. Custode Giudiziario Avv. Rosa Masi - Email "avv.rosamasi@libero.it"; Tel. 0984390596. Rif. Tribunale di Cosenza - Espropriazione immobiliare (cartabia) n. 171/2023

Superficie 138,81 mq
Vani 6,00
Bagni
Piano 0

Tipologia di vendita Giudiziaria
Modalità di vendita Sincrona mista
Termine presentazione offerte 01/01/1900 ore 00:00
Data e ora inizio gara 05/02/2026 ore 10:45
Codice ID astegiudiziarie.it 4332973
6,00
138,81
0
€ 96.696

Ti interessa questa vendita?

north_east

Clicca qui per essere indirizzato alla scheda sul sito di provenienza

Bene di astegiudiziarie.it