highlight_off
Riferimento annuncio 300471 info

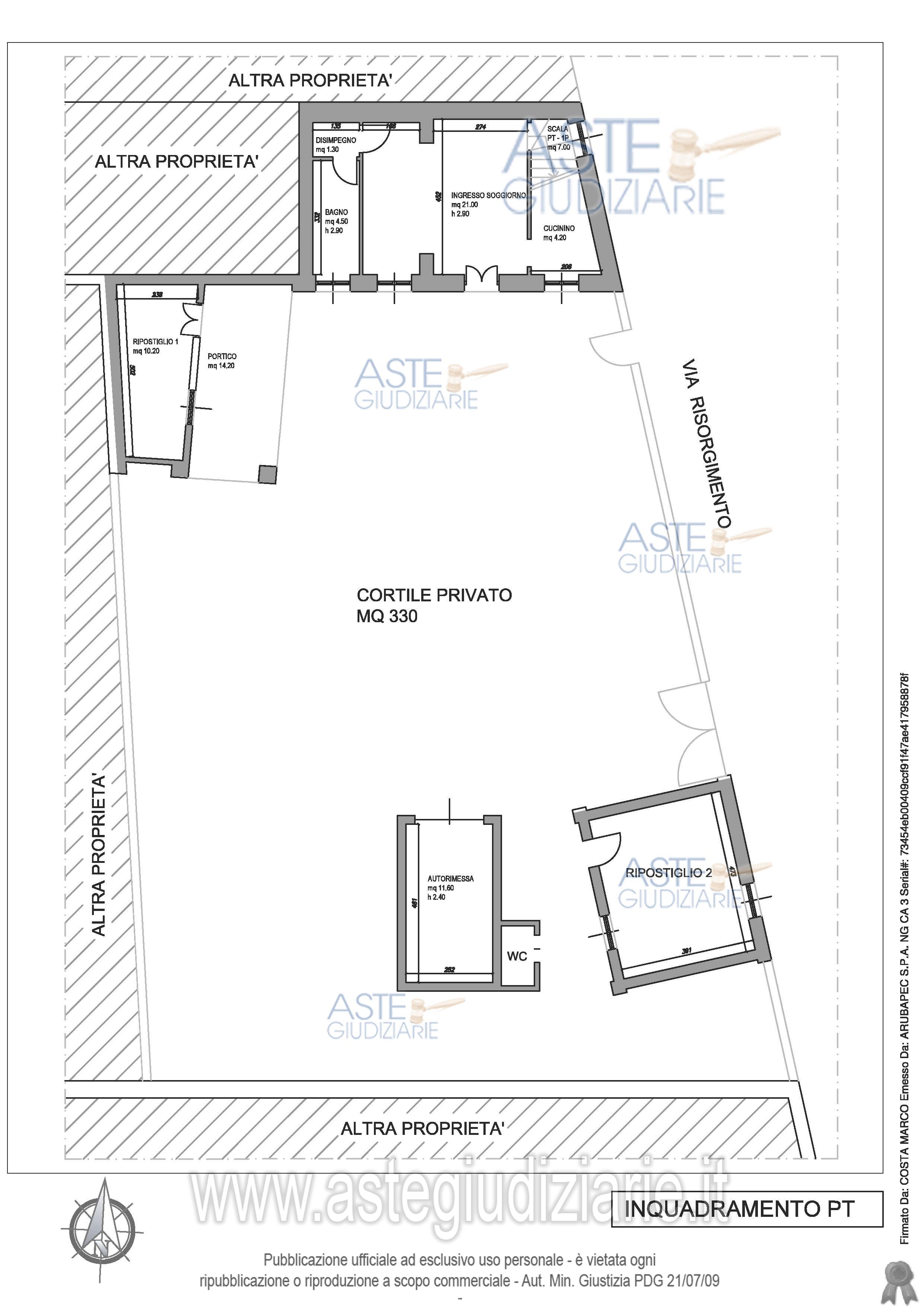
Appartamento Via Risorgimento, 15/19, 27030 Zeme PV, Italia, 27030 Zeme (PV)

7,00
116,00
0
€ 20.250
Vendita all'asta Senza incanto, con gara telematica asincrona - LOTTO UNICO: Casa di abitazione distribuita su due piani fuori terra oltre locale tettoia e cassero legnaia al primo piano con accesso dal cortile privato, corredata da locali accessori edificati in corpo staccato sul cortile privato. Prezzo base € 20.250,00 (offerta minima € 15.190,00). Data inizio operazioni di vendita: 21/01/2026 ore 10:30. Giudice Rizzi. Professionista delegato alla vendita Dott. Gianluca Fraccari. Custode Giudiziario Ivg Di Vigevano - Email "immobiliarivigevano@ifir.it". Rif. Tribunale di Pavia - Espropriazione immobiliare (cartabia) n. 354/2023

Superficie 116,00 mq
Vani 7,00
Bagni
Piano 0

Tipologia di vendita Giudiziaria
Modalità di vendita Asincrona telematica
Termine presentazione offerte 20/01/2026 ore 12:00
Data e ora inizio gara 21/01/2026 ore 10:30
Codice ID astegiudiziarie.it 4324138
7,00
116,00
0
€ 20.250

Ti interessa questa vendita?

north_east

Clicca qui per essere indirizzato alla scheda sul sito di provenienza

Bene di astegiudiziarie.it