highlight_off
Riferimento annuncio 305895 info

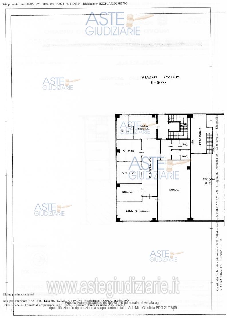
Appartamento Via Brandizzo, 252, 10088 Volpiano TO, Italia, 10088 Volpiano (TO)

6,50
1246,14
0
€ 441.500
Vendita all'asta Senza incanto, con gara telematica asincrona - LOTTO UNICO: Capannone artigianale annessa a palazzina adibita ad uffici, oltre Unità immobiliare in palazzina annessa a capannone artigianale. Prezzo base € 441.500,00 (offerta minima € 331.125,00). Data inizio operazioni di vendita: 24/02/2026 ore 10:30. Giudice Dott. Stefania Frojo. Professionista delegato alla vendita Avv. Lorena Meritano. Custode Giudiziario Avv. Lorena Meritano - Email "studio.dcpm@libero.it". Rif. Tribunale di Ivrea - Espropriazione immobiliare (cartabia) n. 163/2024

Superficie 1246,14 mq
Vani 6,50
Bagni
Piano 0

Tipologia di vendita Giudiziaria
Modalità di vendita Asincrona telematica
Termine presentazione offerte 23/02/2026 ore 12:00
Data e ora inizio gara 24/02/2026 ore 10:30
Codice ID astegiudiziarie.it 4328460
6,50
1246,14
0
€ 441.500

Ti interessa questa vendita?

north_east

Clicca qui per essere indirizzato alla scheda sul sito di provenienza

Bene di astegiudiziarie.it