highlight_off
Riferimento annuncio 315995 info

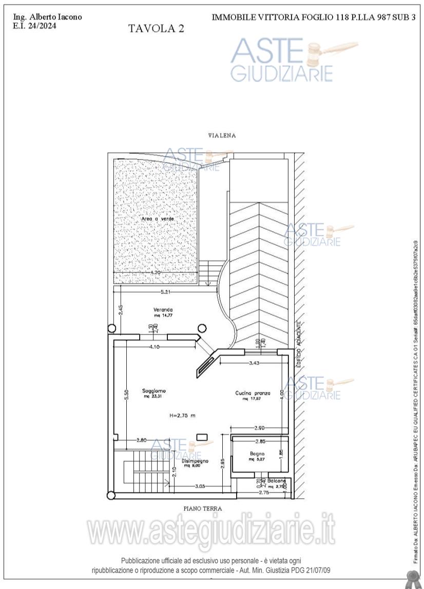
Appartamento Via Ettore Lena, 3, 97019 Vittoria RG, Italia, 97019 Vittoria (RG)

7,50
162,00
0
€ 167.000
Vendita all'asta Senza incanto, con gara telematica sincrona mista - LOTTO UNICO: Diritto di proprietà superficiaria su immobile residenziale sito in Vittoria (RG - 97019), via Ettore Lena n. 3 (Contrada Cicchitto), costituito da villetta a schiera su tre livelli, ed esattamente da piano terra e piano primo adibiti a civile abitazione e da piano seminterrato, destinato a garage e cantina. Prezzo base € 167.000,00 (offerta minima € 125.250,00). Data vendita 12/12/2025 ore 10:00. Professionista delegato alla vendita Avv. Raffaella Zisa - Email "raffaella.zisa@avvragusa.legalmail.it"; Cell. 3477618108; Tel. 0932246796. Custode Giudiziario Avv. Raffaella Zisa - Email "raffaella.zisa@avvragusa.legalmail.it"; Cell. 3477618108; Tel. 0932246796. Rif. Tribunale di Ragusa - Espropriazione immobiliare (cartabia) n. 24/2024

Superficie 162,00 mq
Vani 7,50
Bagni
Piano 0

Tipologia di vendita Giudiziaria
Modalità di vendita Sincrona mista
Termine presentazione offerte 01/01/1900 ore 00:00
Data e ora inizio gara 12/12/2025 ore 10:00
Codice ID astegiudiziarie.it 4335641
7,50
162,00
0
€ 167.000

Ti interessa questa vendita?

north_east

Clicca qui per essere indirizzato alla scheda sul sito di provenienza

Bene di astegiudiziarie.it