highlight_off
Riferimento annuncio 307324 info

Appartamento Via della Vezza, 33, 01100 Grotte Santo Stefano VT, Italia, 01100 Viterbo (VT)

5,00
110,00
0
€ 60.000
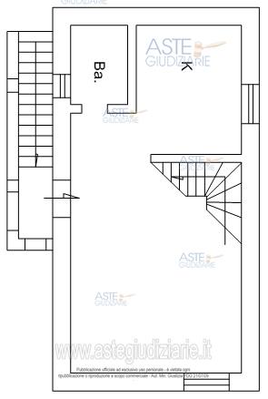
Vendita all'asta Senza incanto, con gara telematica asincrona - LOTTO 2: Appartamento ai piani primo e secondo, con accesso dal civico 33 di via Vezza nella frazione Grotte Santo Stefano di Viterbo - foglio 38, particella 458, sub 3, z.c. 4 graffata particella 462, sub 3 ctg. A/4, cl. 3 consistenza 5 vani, sup. cat. mq. 114 senza aree scop. mq. 110 rendita € 215,88 . Prezzo base € 60.000,00 (offerta minima € 45.000,00). Data inizio operazioni di vendita: 19/11/2025 ore 10:40. Professionista delegato alla vendita Dott. Mauro Baraldi - Email "baraldi-mauro@libero.it"; Cell. 3286616471; Tel. 0761251561. Custode Giudiziario Dott. Mauro Baraldi - Email "baraldi-mauro@libero.it"; Cell. 3286616471; Tel. 0761251561. Rif. Tribunale di Viterbo - Esecuzione immobiliare post legge 80 n. 251/2012

Superficie 110,00 mq
Vani 5,00
Bagni
Piano 0

Tipologia di vendita Giudiziaria
Modalità di vendita Asincrona telematica
Termine presentazione offerte 18/11/2025 ore 13:00
Data e ora inizio gara 19/11/2025 ore 10:40
Codice ID astegiudiziarie.it 4329524
5,00
110,00
0
€ 60.000

Ti interessa questa vendita?

north_east

Clicca qui per essere indirizzato alla scheda sul sito di provenienza

Bene di astegiudiziarie.it