highlight_off
Riferimento annuncio 265379 info

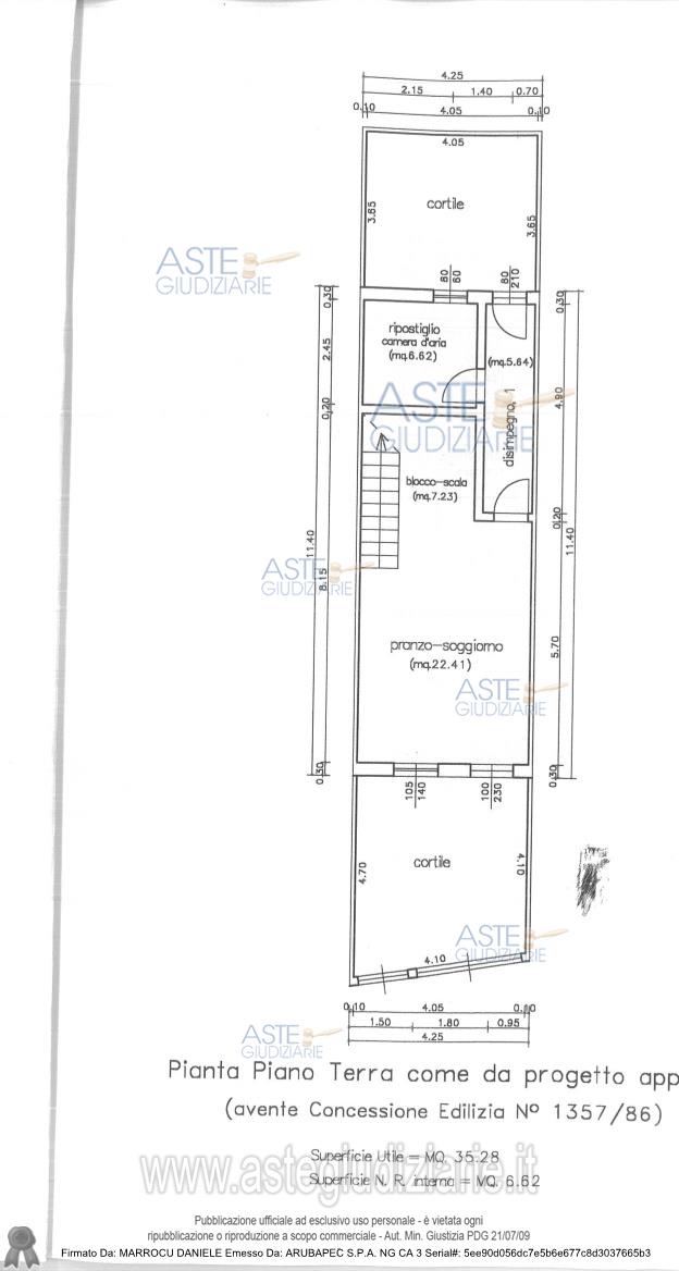
Appartamento Via Monastir n. 55, 09034 Villasor (SU)

4,00
87,00
0
€ 49.000
Vendita all'asta Senza incanto, con gara telematica asincrona - LOTTO UNICO: Lotto Unico: Quota pari a 1/1 del diritto di proprietà sull'immobile censito al N.C.E.U. del Comune di Villasor (CA), al Foglio n. 51, particella 5212 (ex 2655), via Monastir al n.55, piano T-1-2, cat.A/3, Classe 2, vani 4, superficie catastale totale 87 mq (escluse aree scoperte 83 mq), rendita catastale € 194,19. Prezzo base € 49.000,00 (offerta minima € 36.800,00). Data inizio operazioni di vendita: 19/02/2026 ore 10:00. Giudice Dott. Valentina Frongia. Professionista delegato alla vendita Dott. Giuseppe Marongiu - Email "studio@studiomarongiu.it"; Tel. 0704560865. Custode Giudiziario Fresi Lino Icilio Felice Ivg Cagliari - Email "ivg.visiteimmobili@tiscali.it"; Tel. 0702299036. Rif. Tribunale di Cagliari - Esecuzione immobiliare post legge 80 n. 39/2021

Superficie 87,00 mq
Vani 4,00
Bagni
Piano 0

Tipologia di vendita Giudiziaria
Modalità di vendita Asincrona telematica
Termine presentazione offerte 18/02/2026 ore 10:00
Data e ora inizio gara 19/02/2026 ore 10:00
Codice ID astegiudiziarie.it 4299000
4,00
87,00
0
€ 49.000

Ti interessa questa vendita?

north_east

Clicca qui per essere indirizzato alla scheda sul sito di provenienza

Bene di astegiudiziarie.it