highlight_off
Riferimento annuncio 306261 info

Appartamento Vico I Garibaldi, 10/12, 09020 Villanovafranca SU, Italia, 09020 Villanovafranca (SU)

9,00
215,00
0
€ 63.200
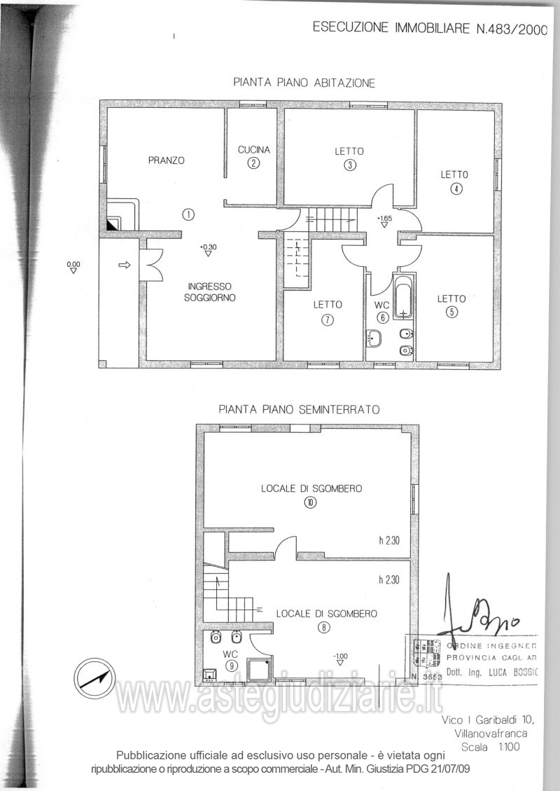
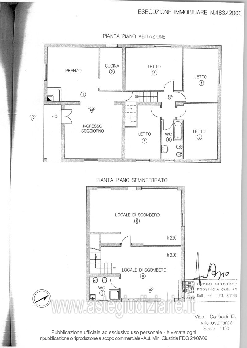
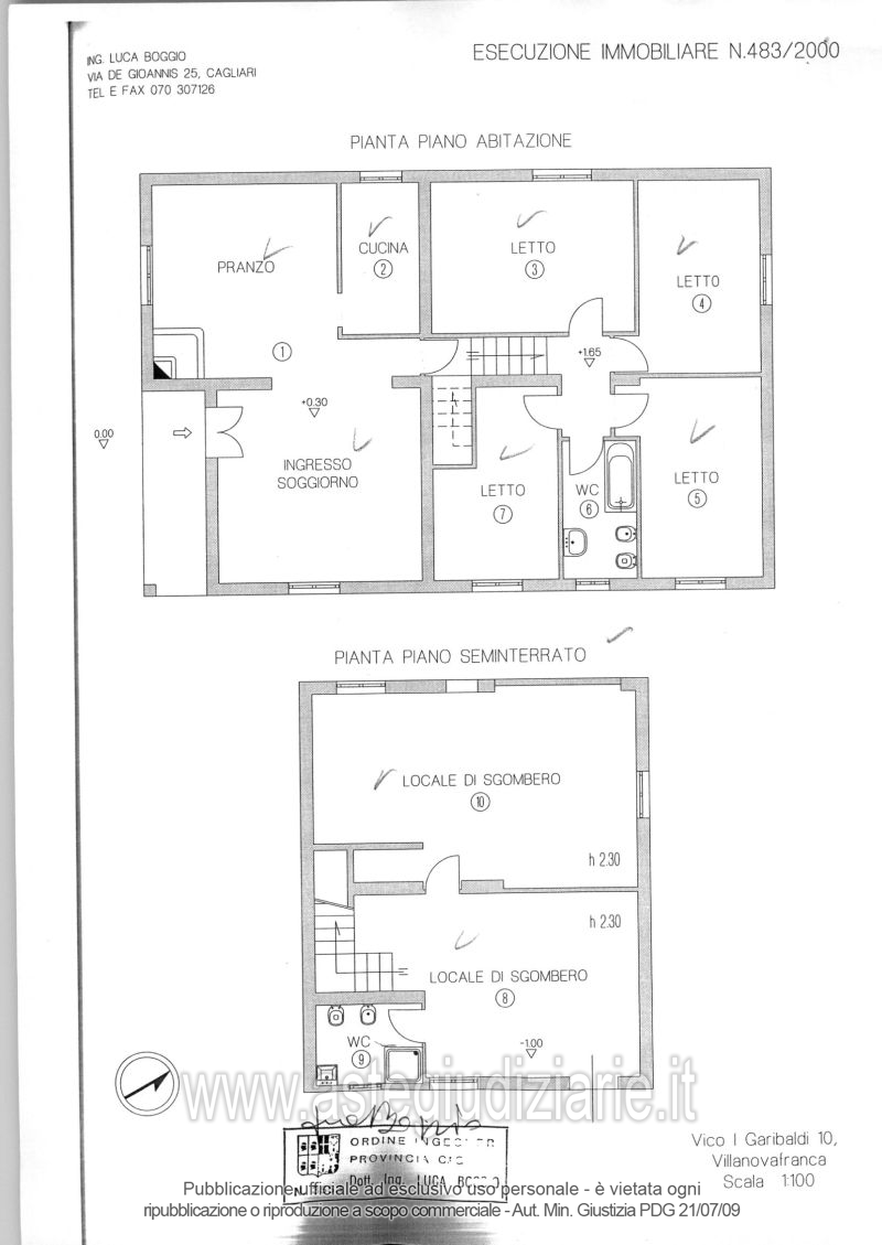
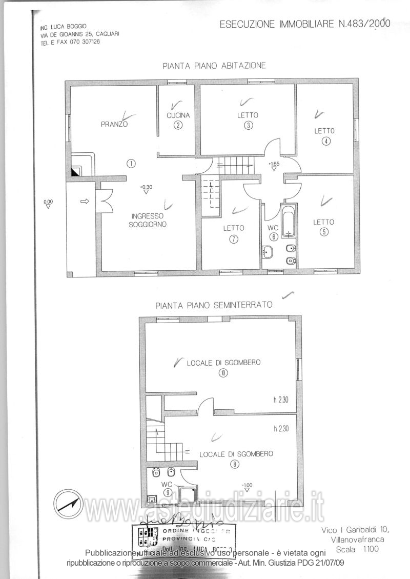
Vendita all'asta Senza incanto, con gara telematica asincrona - LOTTO UNICO: quota pari all’intero del diritto di proprietà sul fabbricato residenziale su due livelli, terra e seminterrato, con accesso dal Vico Garibaldi n.10/12, composto al piano terra da quattro camere, soggiorno-sala da pranzo, cucina, disimpegno, due bagni e al piano seminterrato da due cantine e un bagno. Prezzo base € 63.200,00 (offerta minima € 47.400,00). Data inizio operazioni di vendita: 03/12/2025 ore 11:00. Giudice Dott. Francesco De Giorgi. Professionista delegato alla vendita Not. Paolo Tardiola - Email "ufficiouniconotai@pec.it"; Tel. 07060222574. Custode Giudiziario Ivg Cagliari - Email "ivg.visiteimmobili@tiscali.it"; Tel. 0702299036. Rif. Tribunale di Cagliari - Esecuzione immobiliare post legge 80 n. 483/2000

Superficie 215,00 mq
Vani 9,00
Bagni
Piano 0

Tipologia di vendita Giudiziaria
Modalità di vendita Asincrona telematica
Termine presentazione offerte 01/01/1900 ore 00:00
Data e ora inizio gara 03/12/2025 ore 11:00
Codice ID astegiudiziarie.it 228272
9,00
215,00
0
€ 63.200

Ti interessa questa vendita?

north_east

Clicca qui per essere indirizzato alla scheda sul sito di provenienza

Bene di astegiudiziarie.it