highlight_off
Riferimento annuncio 248566 info

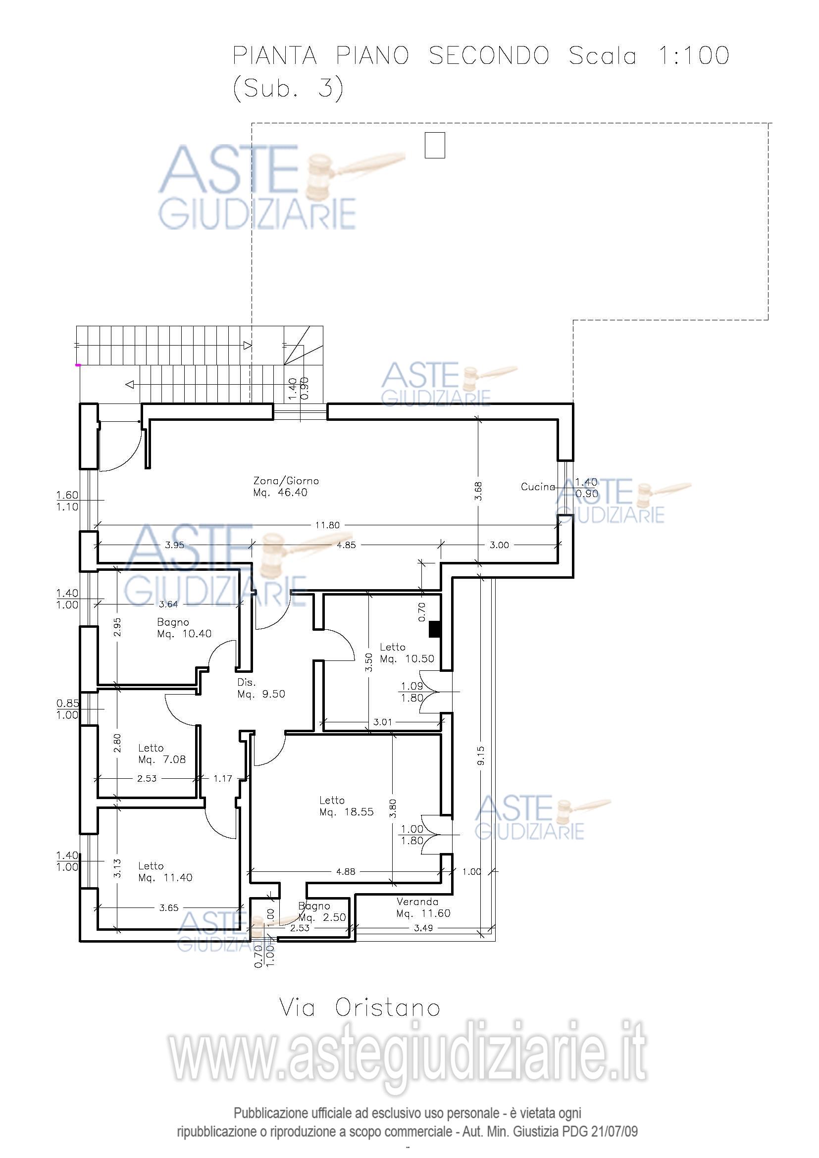
Appartamento VIA ORISTANO 12/C, 08030 Villanova Tulo (SU)

7,00
154,00
0
€ 20.058
Vendita all'asta Senza incanto, con gara telematica asincrona - LOTTO 3: Quota pari all’intero del diritto di proprietà sull’immobile sito in Comune di Villanova Tulo (SU) Via Oristano 12/C e precisamente: appartamento al PIANO SECONDO distinto al NCEU al foglio n. 12 Particella 1851 sub. 3 (ex particella 1092 sub. 2), Categoria A/2, Classe 6, superficie catastale mq. 154, consistenza 7 vani, Rendita Catastale euro 361,52. Prezzo base € 20.058,34 (offerta minima € 15.043,75). Data inizio operazioni di vendita: 17/02/2026 ore 09:15. Giudice Dott. Valentina Frongia. Professionista delegato alla vendita Dott. Renato Macciotta. Custode Giudiziario Ivg Cagliari - Email "ivg.visiteimmobili@tiscali.it"; Tel. 0702299036. Rif. Tribunale di Cagliari - Esecuzione immobiliare post legge 80 n. 225/2015

Superficie 154,00 mq
Vani 7,00
Bagni
Piano 0

Tipologia di vendita Giudiziaria
Modalità di vendita Asincrona telematica
Termine presentazione offerte 01/01/1900 ore 00:00
Data e ora inizio gara 17/02/2026 ore 09:15
Codice ID astegiudiziarie.it 4202921
7,00
154,00
0
€ 20.058

Ti interessa questa vendita?

north_east

Clicca qui per essere indirizzato alla scheda sul sito di provenienza

Bene di astegiudiziarie.it