highlight_off
Riferimento annuncio 323307 info

Appartamento via Pastore n. 30 int. 12, 35010 Vigonza (PD)

0
€ 125.000
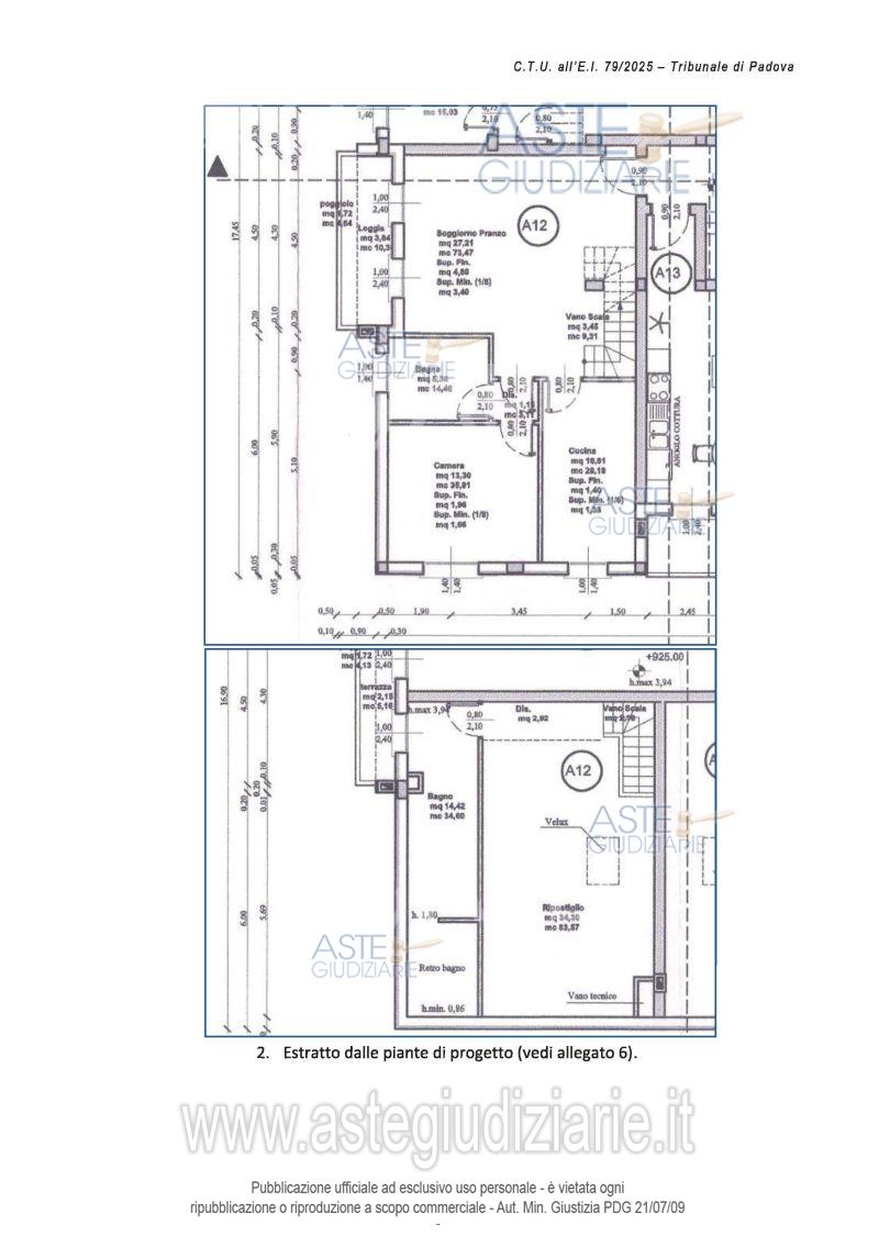
Vendita all'asta Senza incanto, con gara telematica sincrona - LOTTO UNICO: Lotto Unico - piena proprietà di unità immobiliari facenti parte del fabbricato condominiale denominato "Palazzina A", sito in Comune di Vigonza (PD), via Pastore n. 30 int. 12, edificato unitamente ad altro edificio sull'area descritta in C.T., Fg. 23, partic. 421 di are 19.24 E.U. e precisamente trattasi di un appartamento al piano secondo (angolo sud-ovest dell'edificio) con mansarda/ripostiglio al piano terzo e garage al piano interrato della superficie commerciale complessiva di mq. 110. Libero. Prezzo base € 125.000,00 (offerta minima € 93.750,00). Data vendita 05/03/2026 ore 14:15. Giudice Pasqualetto. Professionista delegato alla vendita Not. Filippo Rampazzo - Email "aste@apepnotai.it"; Tel. 049651228. Custode Giudiziario Apep - Email "visita@apepnotai.it"; Tel. 049651228. Rif. Tribunale di Padova - Espropriazione immobiliare (cartabia) n. 79/2025

Superficie mq
Vani
Bagni
Piano 0

Tipologia di vendita Giudiziaria
Modalità di vendita Sincrona telematica
Termine presentazione offerte 01/01/1900 ore 00:00
Data e ora inizio gara 05/03/2026 ore 14:15
Codice ID astegiudiziarie.it 4341949
0
€ 125.000

Ti interessa questa vendita?

north_east

Clicca qui per essere indirizzato alla scheda sul sito di provenienza

Bene di astegiudiziarie.it