Riferimento annuncio 304823
        
    
    Appartamento Via Mocenigo, 41, 25078 Vestone BS, Italia, 25078 Vestone (BS)
                
                6,00
            
            
                
                123,00
            
            
                
                0
            
        
€ 67.800    
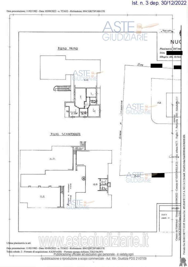
                Vendita all'asta Senza incanto, con gara telematica asincrona - LOTTO UNICO:  Appartamento al piano primo di una palazzina degli anni ‘80 con autorimessa. Oltre alle proporzionali quote sulle parti comuni dell’edificio. Prezzo base € 67.800,00 (offerta minima € 67.800,00). Data inizio operazioni di vendita: 04/11/2025 ore 11:30. Professionista delegato alla vendita Dott. Mila Fantini. Custode Giudiziario Dott. Mila Fantini - Email "dott.fantini@libero.it".  Rif. Tribunale di Brescia - Contenzioso civile n. 232/2022
            
   
| Superficie | 123,00 mq | 
|---|---|
| Vani | 6,00 | 
| Bagni | |
| Piano | 0 | 
| Tipologia di vendita | Giudiziaria | 
|---|---|
| Modalità di vendita | Asincrona telematica | 
| Termine presentazione offerte | 03/11/2025 ore 12:00 | 
| Data e ora inizio gara | 04/11/2025 ore 11:30 | 
 
                         
                         
                         
                         
                         
                         
                         
                         
                         
                         
                         
                         
                         
                         
                         
                         
                         
                         
                         
                         
                         
                         
                         
                         
                        