highlight_off
Riferimento annuncio 307399 info

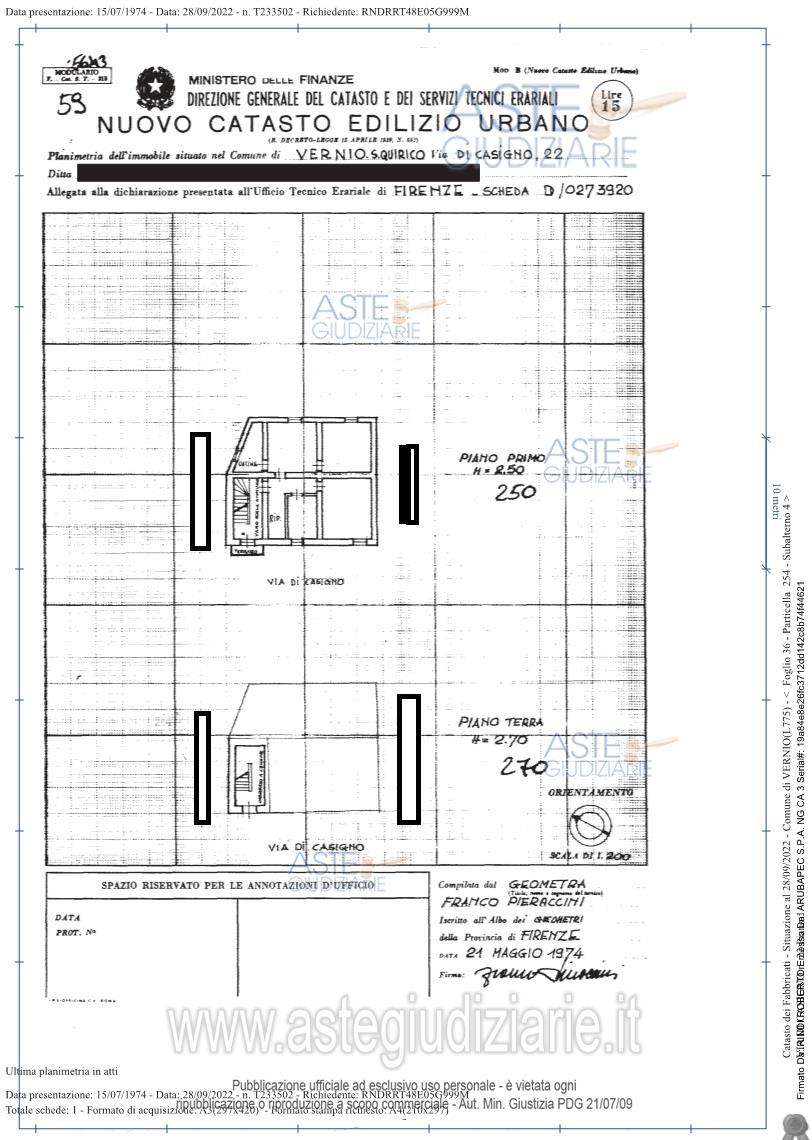
Appartamento VIA DI CASIGNO N. 22 INT. 1, 59024 Vernio (PO)

5,00
131,70
1
€ 56.000
Vendita in attesa dell'emissione del nuovo bando d'asta. LOTTO 1: Appartamento per civile abitazione (lotto 1, immobile "A"), sito in frazione San Quirico del Comune di Vernio Via Di Casigno n. 22 interno n.1. Appartamento al primo piano di uno stabile composto da tre piani e più precisamente è quello con l’ingresso posto davanti alla scala per chi arriva al primo pianerottolo del vano scala condominiale, composto da ingresso-disimpegno, tinello, cucinotto, soggiorno, due camere, ripostiglio, bagno. Ultimo prezzo base € 56.000,00 (offerta minima € 42.000,00). Professionista delegato alla vendita Avv. Eleonora Monciatti - Email "avv.eleonora.monciatti@gmail.com"; Cell. 3496653497; Tel. 05741825123. Custode Giudiziario Pietro De Bernardi - Email "pratoimmobiliari@isveg.it"; Tel. 057424123. Rif. Tribunale di Prato - Esecuzione immobiliare post legge 80 n. 78/2022

Superficie 131,70 mq
Vani 5,00
Bagni
Piano 1

Tipologia di vendita Giudiziaria
Modalità di vendita Sincrona telematica
Termine presentazione offerte 01/01/1900 ore 00:00
Data e ora inizio gara 24/09/2025 ore 10:00
Codice ID astegiudiziarie.it 4329635
5,00
131,70
1
€ 56.000

Ti interessa questa vendita?

north_east

Clicca qui per essere indirizzato alla scheda sul sito di provenienza

Bene di astegiudiziarie.it