highlight_off
Riferimento annuncio 319183 info

Appartamento Via Oleandri, 2, 24040 Verdellino BG, Italia, 24040 Verdellino (BG)

0
€ 59.947
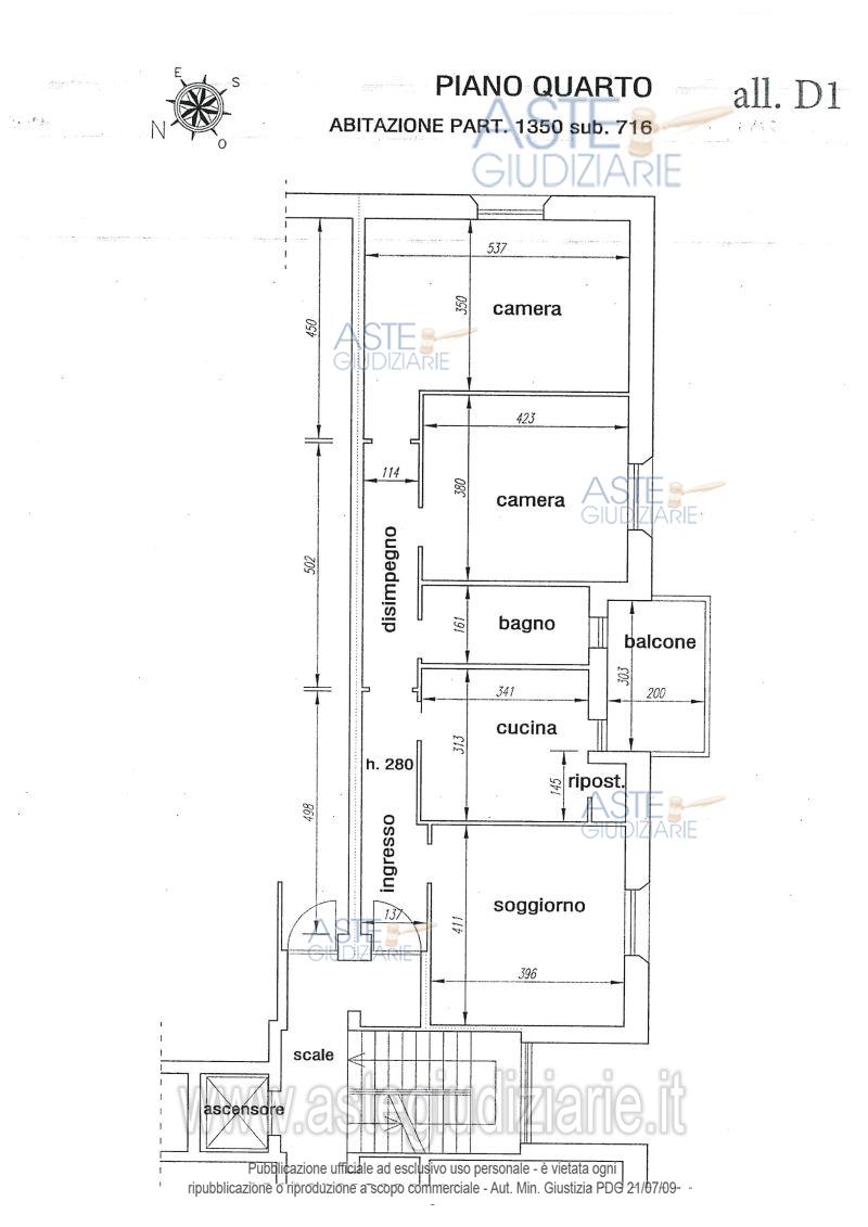
Vendita all'asta Senza incanto, con gara telematica asincrona - LOTTO UNICO: Abitazione al piano quarto ed autorimessa al piano terra, parti di un edificio residenziale di cinque piani fuori terra ultimato nell'anno 1973 e oggetto di rifacimento e coibentazione facciate nell'anno 2023. L'abitazione al quarto piano è così composta: vano ingresso, soggiorno, cucina con piccolo ripostiglio, n.2 camere, bagno, disimpegno notte e balcone. La superficie complessiva è di circa mq 131,00.L'autorimessa al piano terra è ampia e adeguata al ricovero di un'autovettura di grandi dimensioni. Prezzo base € 59.947,00 (offerta minima € 44.960,25). Data inizio operazioni di vendita: 15/01/2026 ore 15:30. Giudice Vincenzo Domenico Scibetta. Professionista delegato alla vendita Dott. Filippo Sodo - Email "procedure@studiosodo.eu"; Tel. 035221575. Custode Giudiziario V.G.C. S.R.L. - Email "immobiliare@ivgbergamo.it"; Tel. 0350763005. Rif. Tribunale di Bergamo - Espropriazione immobiliare (cartabia) n. 52/2025

Superficie mq
Vani
Bagni
Piano 0

Tipologia di vendita Giudiziaria
Modalità di vendita Asincrona telematica
Termine presentazione offerte 14/01/2026 ore 12:00
Data e ora inizio gara 15/01/2026 ore 15:30
Codice ID astegiudiziarie.it 4339260
0
€ 59.947

Ti interessa questa vendita?

north_east

Clicca qui per essere indirizzato alla scheda sul sito di provenienza

Bene di astegiudiziarie.it