highlight_off
Riferimento annuncio 109122 info

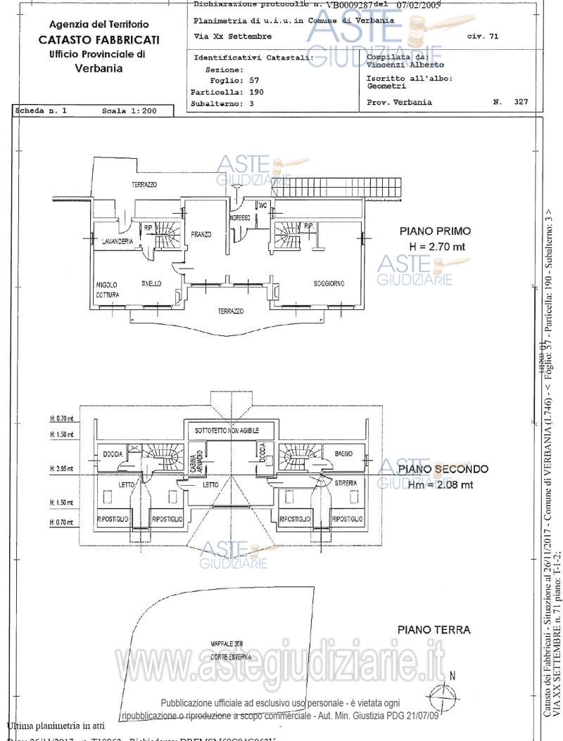
Appartamento Via XX Settembre, 71, 28900 Verbania (VB)

12,50
261,90
2
0
€ 320.000
Vendita all'asta Senza incanto, con gara telematica asincrona - LOTTO UNICO: Piena proprietà di appartamento su due piani (primo e secondo) con annessa pertinenziale porzione di terreno. Posto auto scoperto. Prezzo base € 320.000,00 (offerta minima € 240.000,00). Data inizio operazioni di vendita: 23/06/2026 ore 10:00. Giudice Dott. Caterina Sinico. Custode Giudiziario Aste Giudiziarie Inlinea Spa - Email "ufficiocustodie@astegiudiziarie.it". Rif. Tribunale di Verbania - Esecuzione immobiliare post legge 80 n. 111/2017

Superficie 261,90 mq
Vani 12,50
Bagni 2
Piano 0

Tipologia di vendita Giudiziaria
Modalità di vendita Asincrona telematica
Termine presentazione offerte 22/06/2026 ore 12:00
Data e ora inizio gara 23/06/2026 ore 10:00
Codice ID astegiudiziarie.it 421981
12,50
261,90
2
0
€ 320.000

Ti interessa questa vendita?

north_east

Clicca qui per essere indirizzato alla scheda sul sito di provenienza

Bene di astegiudiziarie.it