highlight_off
Riferimento annuncio 243555 info

Appartamento Via dello Speziale, 30, 00049 Velletri RM, Italia, 00049 Velletri (RM)

7,00
151,00
0
€ 54.000
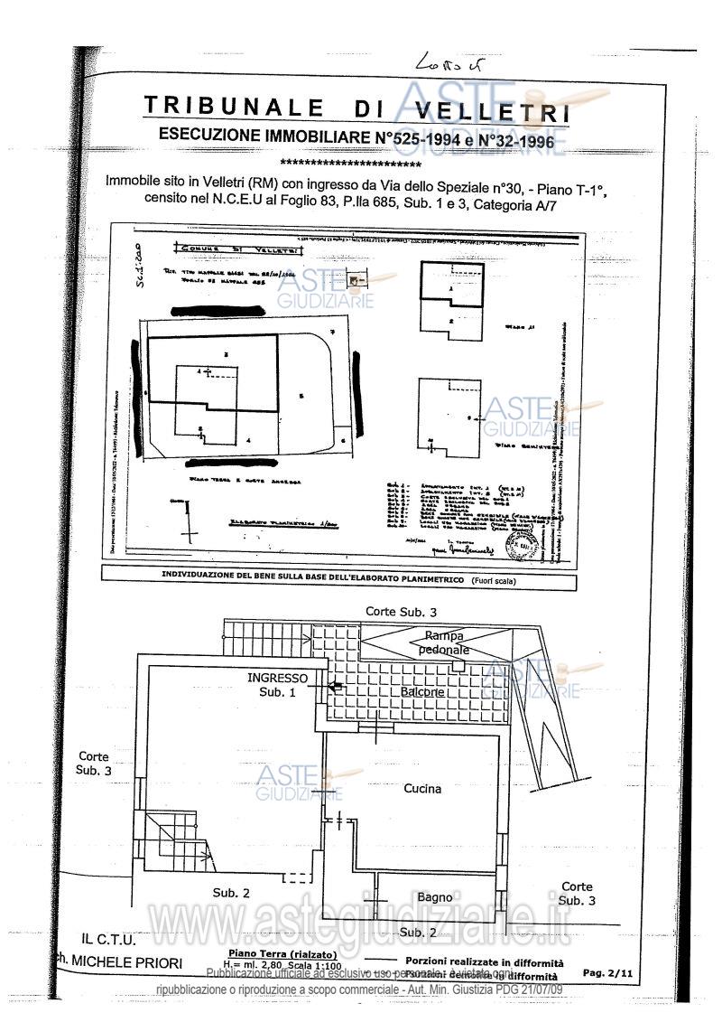
Vendita all'asta Senza incanto, con gara telematica asincrona - LOTTO 5: Appartamento, con corte esclusiva di pertinenza, su due piani collegati da scala interna in muratura, composto al piano rialzato da ampio soggiorno, cucina, corridoio, bagno e balcone, al piano primo da tre camere, bagno, corridoio oltre balcone a livello. Unità immobiliare al piano seminterrato, con destinazione catastale a magazzino. Prezzo base € 54.000,00 (offerta minima € 40.500,00). Data inizio operazioni di vendita: 18/12/2025 ore 10:45. Giudice Dott. Raffaella Calvanese. Professionista delegato alla vendita Avv. Michela Del Monaco - Email "avvmicheladelmonaco@gmail.com". Custode Giudiziario Avv. Michela Del Monaco - Email "michela.delmonaco@studiomdm.eu"; Tel. 0696498956. Rif. Tribunale di Velletri - Esecuzione immobiliare post legge 80 n. 525/1994

Superficie 151,00 mq
Vani 7,00
Bagni
Piano 0

Tipologia di vendita Giudiziaria
Modalità di vendita Asincrona telematica
Termine presentazione offerte 17/12/2025 ore 23:59
Data e ora inizio gara 18/12/2025 ore 10:45
Codice ID astegiudiziarie.it 331414
7,00
151,00
0
€ 54.000

Ti interessa questa vendita?

north_east

Clicca qui per essere indirizzato alla scheda sul sito di provenienza

Bene di astegiudiziarie.it