highlight_off
Riferimento annuncio 242945 info

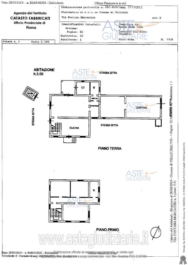
Appartamento Via Fontana Marcaccio n. 2, 00049 Velletri (RM)

1,50
1688,00
1
0
€ 279.000
Vendita all'asta Senza incanto, con gara telematica asincrona - LOTTO 1: Fabbricato civile posti al piano terra, primo e secondo oltre fabbricato civile posto al piano terra e terreno. Prezzo base € 279.000,00 (offerta minima € 209.250,00). Data inizio operazioni di vendita: 07/05/2026 ore 09:00. Professionista delegato alla vendita Avv. Riccardo Guidaldi. Custode Giudiziario Avv. Riccardo Guidaldi - Email "rguidaldi@tiscali.it"; Tel. 06-9630978. Rif. Tribunale di Velletri - Esecuzione immobiliare post legge 80 n. 454/2018

Superficie 1688,00 mq
Vani 1,50
Bagni 1
Piano 0

Tipologia di vendita Giudiziaria
Modalità di vendita Asincrona telematica
Termine presentazione offerte 06/05/2026 ore 23:59
Data e ora inizio gara 07/05/2026 ore 09:00
Codice ID astegiudiziarie.it 4279469
1,50
1688,00
1
0
€ 279.000

Ti interessa questa vendita?

north_east

Clicca qui per essere indirizzato alla scheda sul sito di provenienza

Bene di astegiudiziarie.it