highlight_off
Riferimento annuncio 321188 info

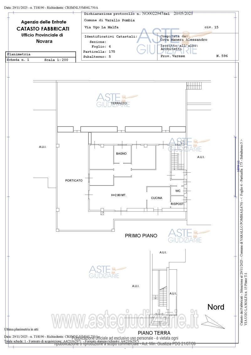
Appartamento Via Ugo la Malfa, 15, 28040 Varallo Pombia (NO)

3,50
1
0
€ 442.000
Vendita all'asta Senza incanto, con gara telematica asincrona - LOTTO UNICO: Edificio a destinazione promiscua sviluppato su area di 1729 mq. completamente recintata costituito da unità immobiliari catastalmente indipendenti così riassumibili: n. 3 autorimesse; n. 1 Deposito/laboratorio; n. 3 appartamenti ad uso residenziale. Esternamente alla recinzione vi sono tre terreni destinati a sedime stradale e area su cui insiste cabina ENEL. Prezzo base € 442.000,00 (offerta minima € 331.500,00). Data inizio operazioni di vendita: 13/02/2026 ore 12:00. Professionista delegato alla vendita Not. Emanuele Caroselli - Email "ecaroselli@notariato.it"; Tel. 032134330. Rif. Tribunale di Novara - Liquidazione giudiziale(cci) n. 23/2023

Superficie mq
Vani 3,50
Bagni 1
Piano 0

Tipologia di vendita Giudiziaria
Modalità di vendita Asincrona telematica
Termine presentazione offerte 12/02/2026 ore 12:00
Data e ora inizio gara 13/02/2026 ore 12:00
Codice ID astegiudiziarie.it 4341047
3,50
1
0
€ 442.000

Ti interessa questa vendita?

north_east

Clicca qui per essere indirizzato alla scheda sul sito di provenienza

Bene di astegiudiziarie.it