highlight_off
Riferimento annuncio 301063 info

Appartamento Via Fontana Vecchia, 00038 Valmontone RM, Italia, 00038 Valmontone (RM)

4,00
54,00
0
€ 84.000
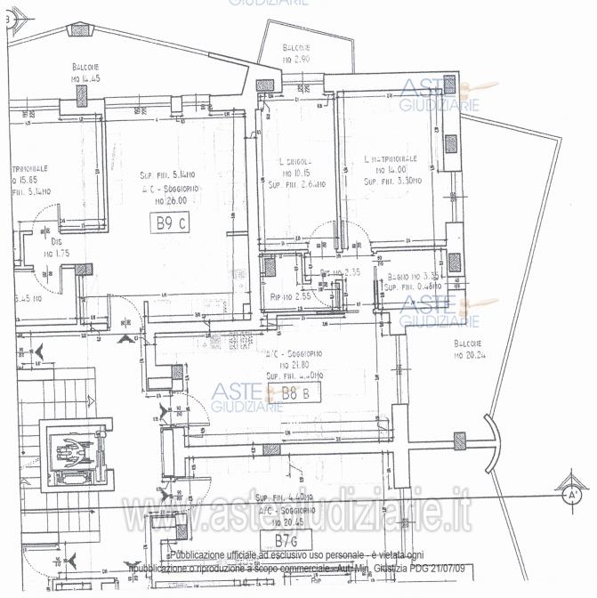
Vendita all'asta Senza incanto, con gara telematica asincrona - LOTTO 4: Appartamento piano primo composto da: soggiorno con angolo cottura, disimpegno, due camere, ripostiglio, bagno e due balconi. Prezzo base € 84.000,00 (offerta minima € 63.000,00). Data inizio operazioni di vendita: 03/02/2026 ore 15:30. Professionista delegato alla vendita Avv. Roberto Cori. Custode Giudiziario Avv. Roberto Cori - Email "studiocori@gmail.com". Rif. Tribunale di Velletri - Esecuzione immobiliare post legge 80 n. 28/2023

Superficie 54,00 mq
Vani 4,00
Bagni
Piano 0

Tipologia di vendita Giudiziaria
Modalità di vendita Asincrona telematica
Termine presentazione offerte 02/02/2026 ore 23:59
Data e ora inizio gara 03/02/2026 ore 15:30
Codice ID astegiudiziarie.it 4324669
4,00
54,00
0
€ 84.000

Ti interessa questa vendita?

north_east

Clicca qui per essere indirizzato alla scheda sul sito di provenienza

Bene di astegiudiziarie.it