highlight_off
Riferimento annuncio 310190 info

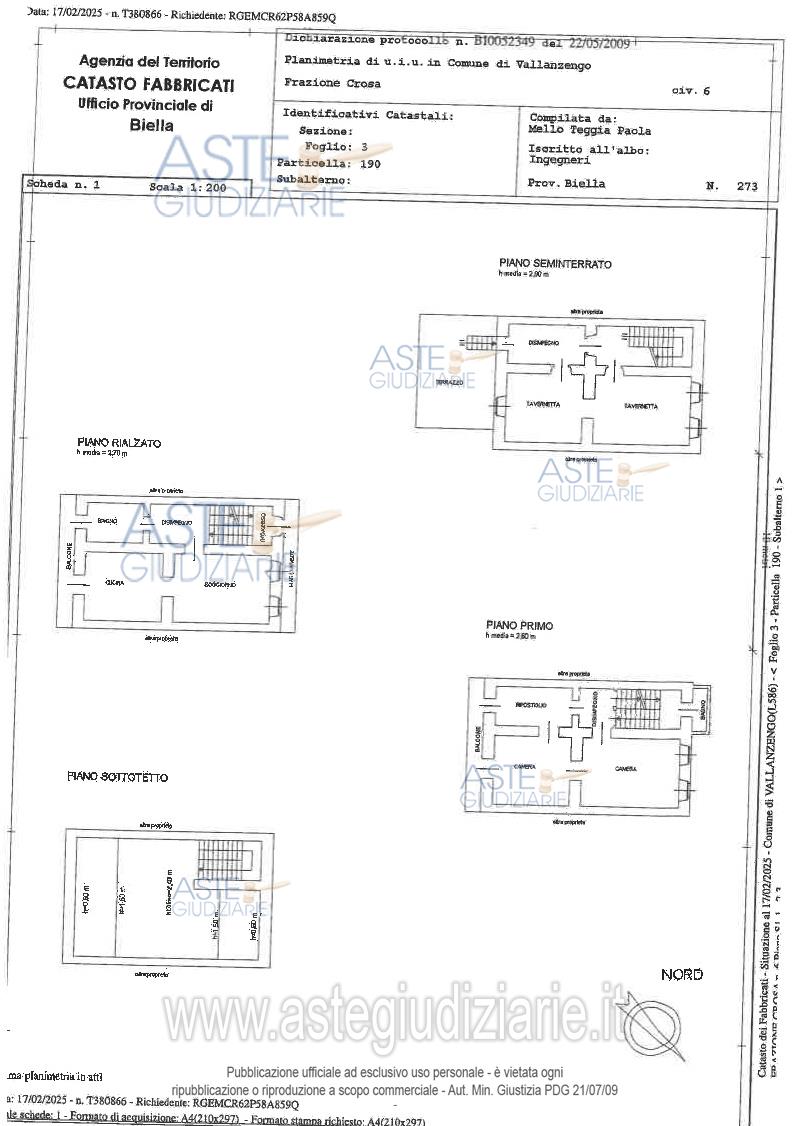
Appartamento Frazione Crosa, 6, 13847 Vallanzengo BI, Italia, 13847 Vallanzengo (BI)

10,00
237,00
0
€ 36.750
Vendita all'asta Senza incanto, con gara telematica asincrona - LOTTO UNICO: Fabbricato di civile abitazione elevato a due piani fuori terra oltre al piano seminterrato ed al piano sottotetto. Prezzo base € 36.750,00 (offerta minima € 27.562,50). Data inizio operazioni di vendita: 27/01/2026 ore 16:15. Giudice Emanuele Migliore. Professionista delegato alla vendita Dott. Carlo Maggia - Email "info@centroasteimmobiliari.it"; Tel. 0150991500. Custode Giudiziario Dott. Carlo Maggia - Email "info@centroasteimmobiliari.it"; Tel. 0150991500. Rif. Tribunale di Biella - Espropriazione immobiliare (cartabia) n. 82/2024

Superficie 237,00 mq
Vani 10,00
Bagni
Piano 0

Tipologia di vendita Giudiziaria
Modalità di vendita Asincrona telematica
Termine presentazione offerte 01/01/1900 ore 00:00
Data e ora inizio gara 27/01/2026 ore 16:15
Codice ID astegiudiziarie.it 4331497
10,00
237,00
0
€ 36.750

Ti interessa questa vendita?

north_east

Clicca qui per essere indirizzato alla scheda sul sito di provenienza

Bene di astegiudiziarie.it