Riferimento annuncio 289331
        
    
    Appartamento via taburri 17, 21039 Valganna (VA)
                
                0
            
        
€ 59.392    
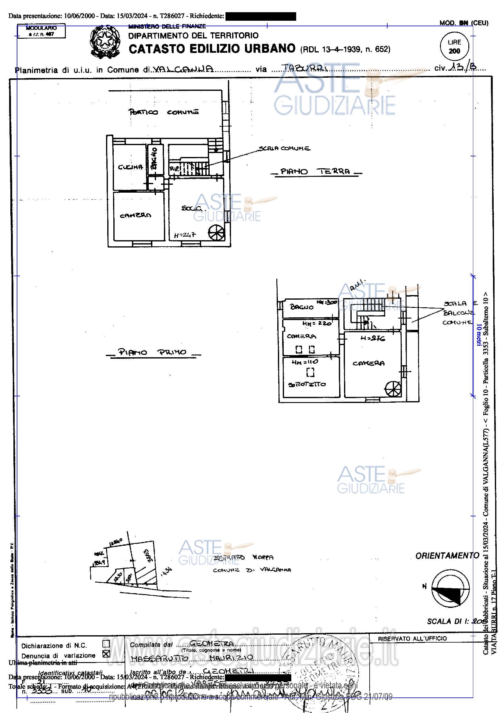
                Vendita all'asta Senza incanto, con gara telematica sincrona mista - LOTTO UNICO:  In zona Campobella, nel centro storico, piena proprietà di immobile residenziale posto al piano T-1, composto al piano terra da soggiorno con zona cucina, locale pranzo, bagno e al piano primo da n.2 camere, bagno e scala interna di collegamento. Prezzo base € 59.392,00 (offerta minima € 44.544,00). Data vendita 14/01/2026 ore 14:30. Giudice Flaminia D'angelo. Professionista delegato alla vendita Avv. Federica Fumagalli - Email "fumagallifederica@hotmail.com"; Cell. 3209661489; Tel. 0332281250. Custode Giudiziario G.I.V.G. Srl - Email "segreteria.va@givg.it"; Tel. 0332335510.  Rif. Tribunale di Varese - Espropriazione immobiliare (cartabia) n. 6/2024
            
   
| Superficie | mq | 
|---|---|
| Vani | |
| Bagni | |
| Piano | 0 | 
| Tipologia di vendita | Giudiziaria | 
|---|---|
| Modalità di vendita | Sincrona mista | 
| Termine presentazione offerte | 01/01/1900 ore 00:00 | 
| Data e ora inizio gara | 14/01/2026 ore 14:30 | 
 
                         
                         
                         
                         
                         
                         
                        