highlight_off
Riferimento annuncio 250914 info

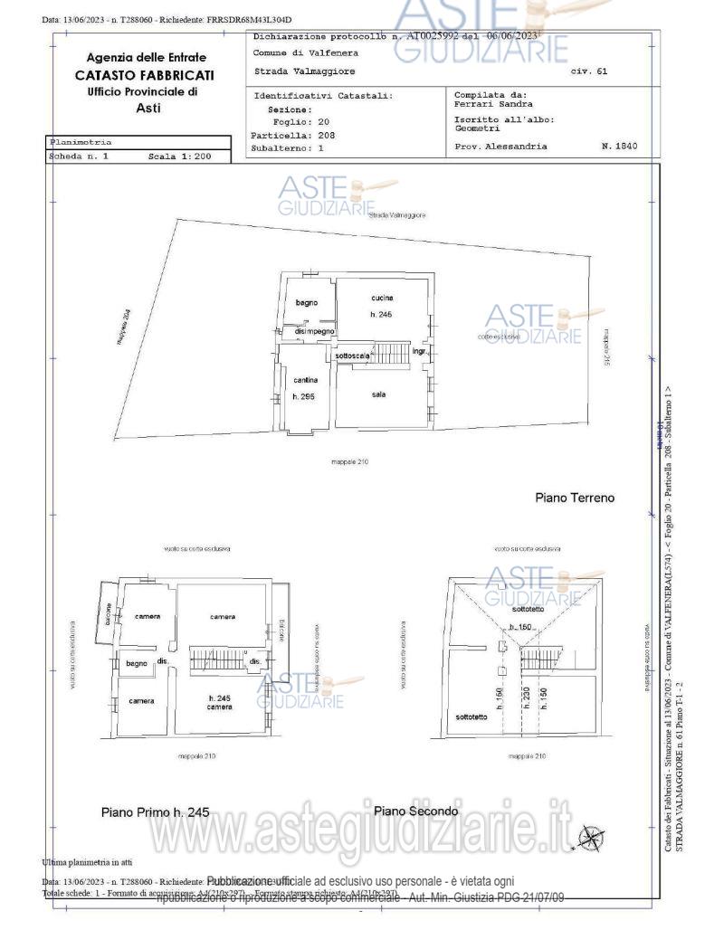
Appartamento strada Valmaggiore 61, 14017 Valfenera (AT)

7,00
420,00
0
€ 52.734
Vendita all'asta Senza incanto, con gara telematica asincrona - LOTTO 1: Fabbricato libero su tre lati, disposto su due piani fuori terra, oltre a sottotetto non abitabile, in zona agricola collinare, sita nel Comune di Valfenera. Prezzo base € 52.734,38 (offerta minima € 39.550,79). Data inizio operazioni di vendita: 17/03/2026 ore 16:00. Giudice Dott. Giuseppe Amoroso. Professionista delegato alla vendita Avv. Maria Agnese - Email "studio.agnese@tiscali.it"; Tel. 0173-441882. Custode Giudiziario Ifir Piemonte Ivg Srl - Email "richiestevisite.asti@ivgpiemonte.it"; Cell. 3664299971; Tel. 011485338-0114731714. Rif. Tribunale di Asti - Esecuzione immobiliare post legge 80 n. 44/2022

Superficie 420,00 mq
Vani 7,00
Bagni
Piano 0

Tipologia di vendita Giudiziaria
Modalità di vendita Asincrona telematica
Termine presentazione offerte 16/03/2026 ore 12:00
Data e ora inizio gara 17/03/2026 ore 16:00
Codice ID astegiudiziarie.it 4285398
7,00
420,00
0
€ 52.734

Ti interessa questa vendita?

north_east

Clicca qui per essere indirizzato alla scheda sul sito di provenienza

Bene di astegiudiziarie.it