highlight_off
Riferimento annuncio 324334 info

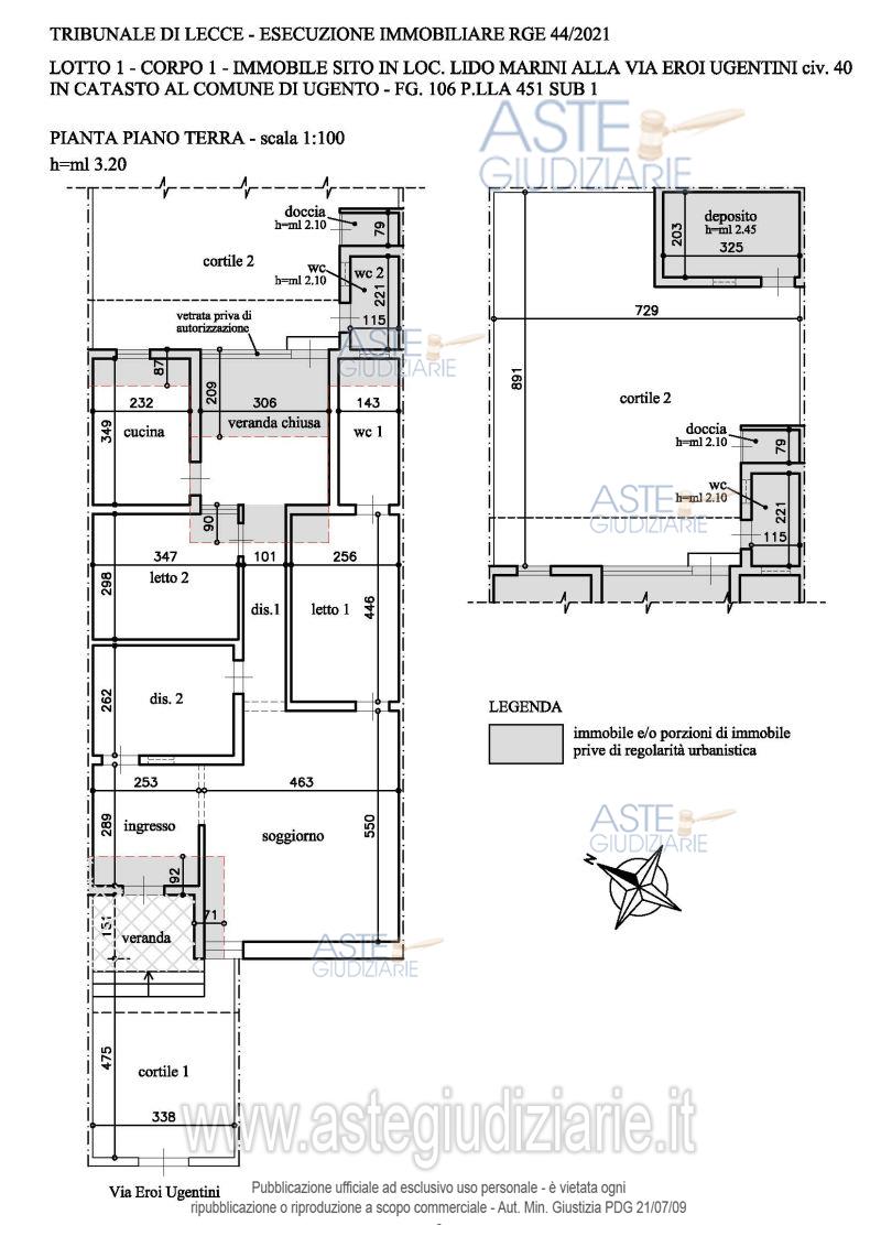
Appartamento Via Eroi Ugentini, 40, Lido Marini, 73059 Ugento (LE)

7,00
404,00
0
€ 183.830
Vendita all'asta Senza incanto, con gara telematica asincrona - LOTTO 1: Piena proprietà per la quota di 1000/1000 di Abitazione di tipo economico, sita in Ugento alla Via Eroi Ugentini, n. 40, piano terra. Nel NCEU al fg 106, plla 451, sub 1;Piena proprietà per la quota di 1000/1000 di Abitazione di tipo economico, sita in Ugento alla Via Eroi Ugentini, n. 44, primo piano Nel NCEU al fg 106, plla 451, sub 2.Piena proprietà per la quota di 1000/1000 di un garage sito in Ugento alla via Eroi Ugentini n. 42, piano interrato. Nel NCEU al fg 106, plla 451, sub 3. Prezzo base € 183.830,20 (offerta minima € 137.872,65). Data inizio operazioni di vendita: 16/03/2026 ore 10:00. Professionista delegato alla vendita Avv. Adele Gaetana Lagna - Email "avvadelelagna@alice.it"; Cell. 3284427677; Tel. 0836569426. Custode Giudiziario Avv. Adele Gaetana Lagna - Email "avvadelelagna@alice.it"; Cell. 3284427677; Tel. 0836569426. Rif. Tribunale di Lecce - Esecuzione immobiliare post legge 80 n. 44/2021

Superficie 404,00 mq
Vani 7,00
Bagni
Piano 0

Tipologia di vendita Giudiziaria
Modalità di vendita Asincrona telematica
Termine presentazione offerte 01/01/1900 ore 00:00
Data e ora inizio gara 16/03/2026 ore 10:00
Codice ID astegiudiziarie.it 4343288
7,00
404,00
0
€ 183.830

Ti interessa questa vendita?

north_east

Clicca qui per essere indirizzato alla scheda sul sito di provenienza

Bene di astegiudiziarie.it