highlight_off
Riferimento annuncio 311517 info

Appartamento Corso Trieste, 70, 02020 Turania RI, Italia, 02020 Turania (RI)

8,00
153,00
0
€ 55.500
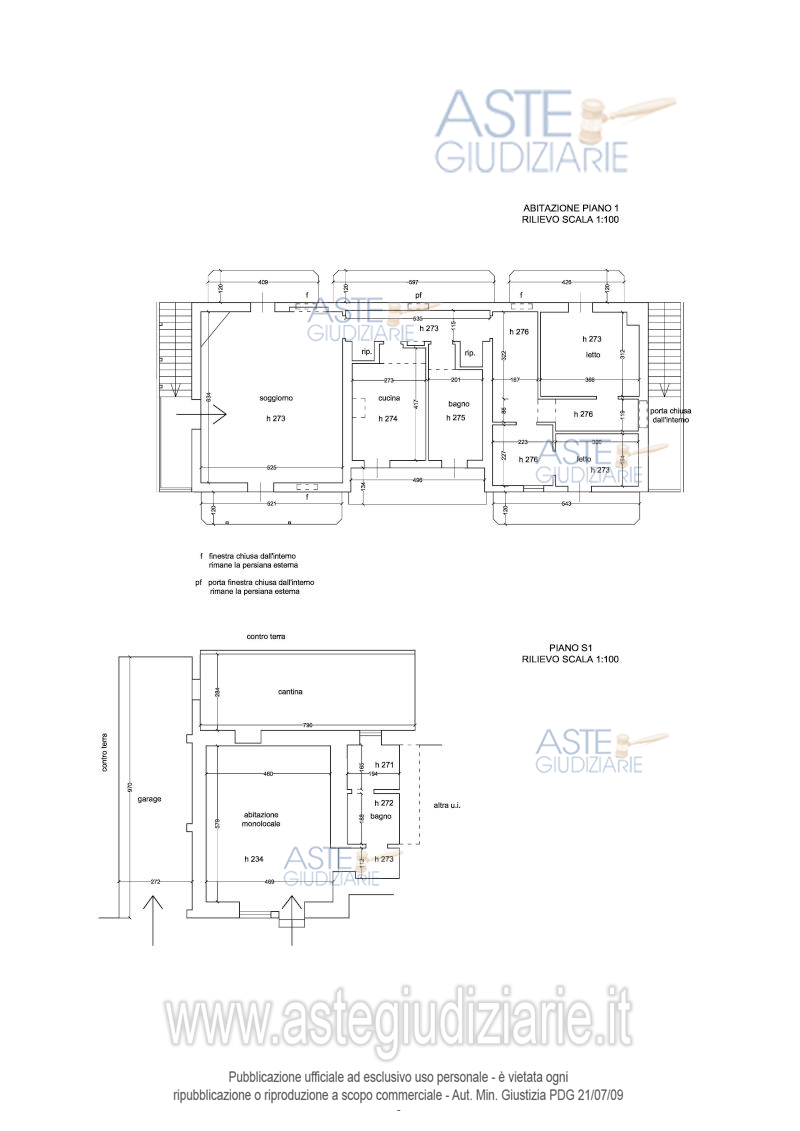
Vendita all'asta Senza incanto, con gara telematica asincrona - LOTTO UNICO: Appartamento in Turania (RI) in Corso Trieste n.70, facente parte di una costruzione bifamiliare articolata su tre piani, piano S1, piano T e piano 1, con circostante terreno corte comune indivisa, con cantina e garage al piano S1. Prezzo base € 55.500,00 (offerta minima € 41.625,00). Data inizio operazioni di vendita: 12/02/2026 ore 15:00. Professionista delegato alla vendita Dott. Anna Maria Salta - Email "saltaannamaria@gmail.com"; Cell. 3466782573. Custode Giudiziario Ivg Di Roma Srl - Email "pvp@visiteivgroma.it"; Tel. 0689569801. Rif. Tribunale di Tivoli - Esecuzione immobiliare post legge 80 n. 340/2024

Superficie 153,00 mq
Vani 8,00
Bagni
Piano 0

Tipologia di vendita Giudiziaria
Modalità di vendita Asincrona telematica
Termine presentazione offerte 11/02/2026 ore 23:59
Data e ora inizio gara 12/02/2026 ore 15:00
Codice ID astegiudiziarie.it 4332575
8,00
153,00
0
€ 55.500

Ti interessa questa vendita?

north_east

Clicca qui per essere indirizzato alla scheda sul sito di provenienza

Bene di astegiudiziarie.it