highlight_off
Riferimento annuncio 278056 info

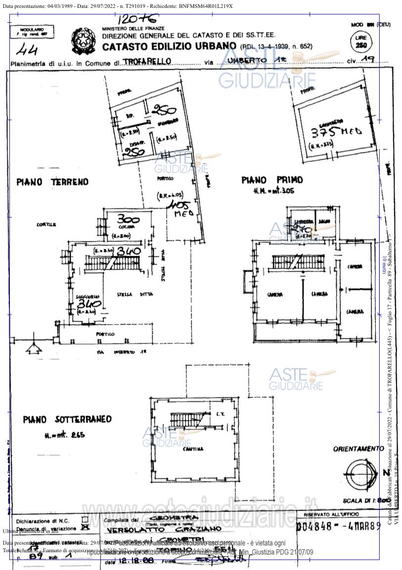
Appartamento Via Umberto I 19, 10028 Trofarello (TO)

0
€ 105.750
Vendita all'asta Senza incanto, con gara telematica asincrona - LOTTO UNICO: Palazzina a 2 piani f.t. con sottotetto e interrato,in Comune di Trofarello (TO),Loc. Valle Sauglio,Via Umberto I 19,così composta: al p.t. locale soggiorno,disimpegno con vano scala,locale cucina accessibile anche al cortile;al p.t.:volumetrie complementari connesse con l’area cortilizia,caratterizzate da una struttura a portico,e un volume a 2 piani ora ad uso deposito;al piano interrato:locale cantina e centrale termica;al piano primo:appartamento composto da 4 camere,bagno,lavanderia e cucina,disimpegno. Prezzo base € 105.750,00 (offerta minima € 79.312,50). Data inizio operazioni di vendita: 21/10/2025 ore 12:00. Giudice Marta Barsotti. Professionista delegato alla vendita Avv. Paola Arossa. Custode Giudiziario Ifir Piemonte Ivg Srl - Email "richieste.visite@ivgpiemonte.it"; Tel. 0114731714. Rif. Tribunale di Torino - Esecuzione immobiliare post legge 80 n. 885/2021

Superficie mq
Vani
Bagni
Piano 0

Tipologia di vendita Giudiziaria
Modalità di vendita Asincrona telematica
Termine presentazione offerte 20/10/2025 ore 12:00
Data e ora inizio gara 21/10/2025 ore 12:00
Codice ID astegiudiziarie.it 4306779
0
€ 105.750

Ti interessa questa vendita?

north_east

Clicca qui per essere indirizzato alla scheda sul sito di provenienza

Bene di astegiudiziarie.it