highlight_off
Riferimento annuncio 307997 info

Appartamento Via Pietro Pilato, 6, 13039 Trino VC, Italia, 13039 Trino (VC)

10,00
396,00
2
0
€ 135.000
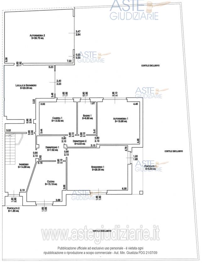
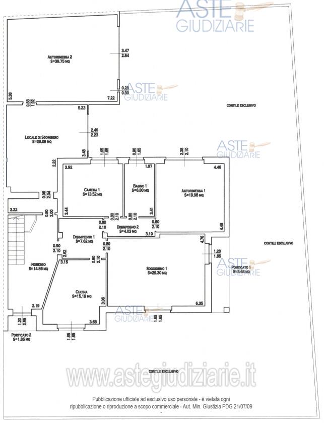
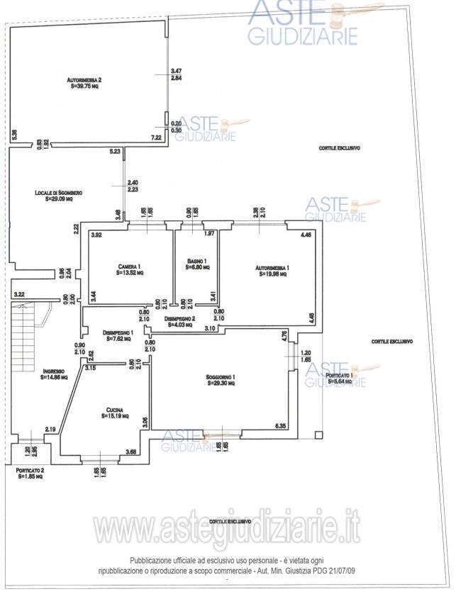
Vendita all'asta Senza incanto, con gara telematica asincrona - LOTTO UNICO: FABBRICATO DI CIVILE ABITAZIONE. Prezzo base € 135.000,00 (offerta minima € 101.250,00). Data inizio operazioni di vendita: 04/12/2025 ore 15:30. Giudice Fanini. Professionista delegato alla vendita Avv. Barbara Pisanzio - Email "barbara@studiolegalepisanzio.it"; Cell. 3382151984. Custode Giudiziario Avv. Barbara Pisanzio - Email "barbara@studiolegalepisanzio.it"; Cell. 3382151984. Rif. Tribunale di Vercelli - Esecuzione immobiliare post legge 80 n. 5/2024

Superficie 396,00 mq
Vani 10,00
Bagni 2
Piano 0

Tipologia di vendita Giudiziaria
Modalità di vendita Asincrona telematica
Termine presentazione offerte 03/12/2025 ore 12:00
Data e ora inizio gara 04/12/2025 ore 15:30
Codice ID astegiudiziarie.it 4330027
10,00
396,00
2
0
€ 135.000

Ti interessa questa vendita?

north_east

Clicca qui per essere indirizzato alla scheda sul sito di provenienza

Bene di astegiudiziarie.it