highlight_off
Riferimento annuncio 94407 info

Appartamento Via C. Menotti 151, 80040 Trecase (NA)

5,00
109,00
0
€ 82.125
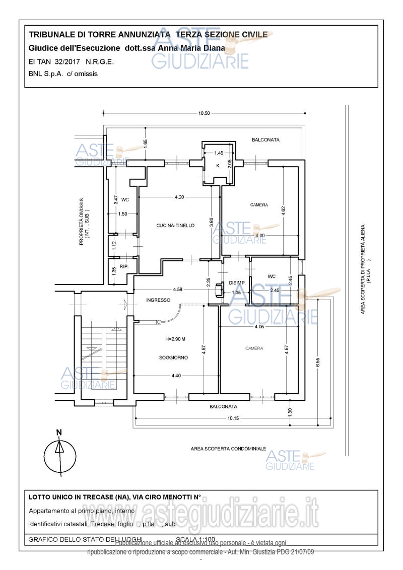
Vendita all'asta Senza incanto, con gara telematica asincrona - LOTTO UNICO: piena ed esclusiva proprietà dell’appartamento posto al primo piano dell’edificio a carattere residenziale, composto da ingresso, soggiorno, disimpegno due camere, cucina-tinello con cucinotto annesso, due bagni oltre a due balconate, di superficie calpestabile pari a 109 mq, più una superficie scoperta di 36 mq. Prezzo base € 82.125,00 (offerta minima € 61.593,75). Data inizio operazioni di vendita: 24/03/2026 ore 15:00. Professionista delegato alla vendita Avv. Giulia Ricciardi - Email "studiolegale_ricciardi@virgilio.it"; Cell. 3479172882. Custode Giudiziario Avv. Giulia Ricciardi - Email "studiolegale_ricciardi@virgilio.it"; Cell. 3479172882. Rif. Tribunale di Torre Annunziata - Esecuzione immobiliare post legge 80 n. 32/2017

Superficie 109,00 mq
Vani 5,00
Bagni
Piano 0

Tipologia di vendita Giudiziaria
Modalità di vendita Asincrona telematica
Termine presentazione offerte 23/03/2026 ore 23:59
Data e ora inizio gara 24/03/2026 ore 15:00
Codice ID astegiudiziarie.it 4167175
5,00
109,00
0
€ 82.125

Ti interessa questa vendita?

north_east

Clicca qui per essere indirizzato alla scheda sul sito di provenienza

Bene di astegiudiziarie.it