highlight_off
Riferimento annuncio 332444 info

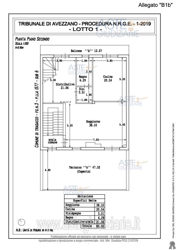
Appartamento Via Monte Velino n.73, 67059 Trasacco (AQ)

306,00
0
€ 135.884
Vendita all'asta Senza incanto, con gara telematica asincrona - LOTTO 1: Appartamento al p.2-3 di un fabb. più ampio, accessibile tramite scala comune, composto da soggiorno, cucina e bagno. Dalla scala interna si accede al p3 formato da 3 camere e 1 bagno. Ai 2 piani sono presenti balconi. Al p2 un ampio terrazzo coperto. Dalla scala comune si raggiunge il livello PS1 ove si trova 1 cantina a servizio dell'abitazione. Inoltre dalla corte dell'immobile, mediante un passaggio comune, si raggiunge un garage con due basculanti (due posti auto) sempre a servizio dell'abitazione. Prezzo base € 135.884,00 (offerta minima € 101.913,00). Data inizio operazioni di vendita: 07/07/2026 ore 15:00. Professionista delegato alla vendita: Avv. Roberto Walter Berardini - Email "roberto.berardini@virgilio.it"; Tel. 0863/444247; Cell. 349/0608911. Custode Giudiziario: Avv. Roberto Walter Berardini - Email "roberto.berardini@virgilio.it"; Tel. 0863/444247; Cell. 349/0608911. Rif. Tribunale di Avezzano - Esecuzione immobiliare post legge 80 n. 1/2019

Superficie 306,00 mq
Vani
Bagni
Piano 0

Tipologia di vendita Giudiziaria
Modalità di vendita Asincrona telematica
Termine presentazione offerte 01/01/1900 ore 00:00
Data e ora inizio gara 07/07/2026 ore 15:00
Codice ID astegiudiziarie.it 4349049
306,00
0
€ 135.884

Ti interessa questa vendita?

north_east

Clicca qui per essere indirizzato alla scheda sul sito di provenienza

Bene di astegiudiziarie.it