highlight_off
Riferimento annuncio 159224 info

Appartamento Via S. Francesco D'Assisi, 91100 Trapani TP, Italia, 91100 Trapani (TP)

0
€ 21.000
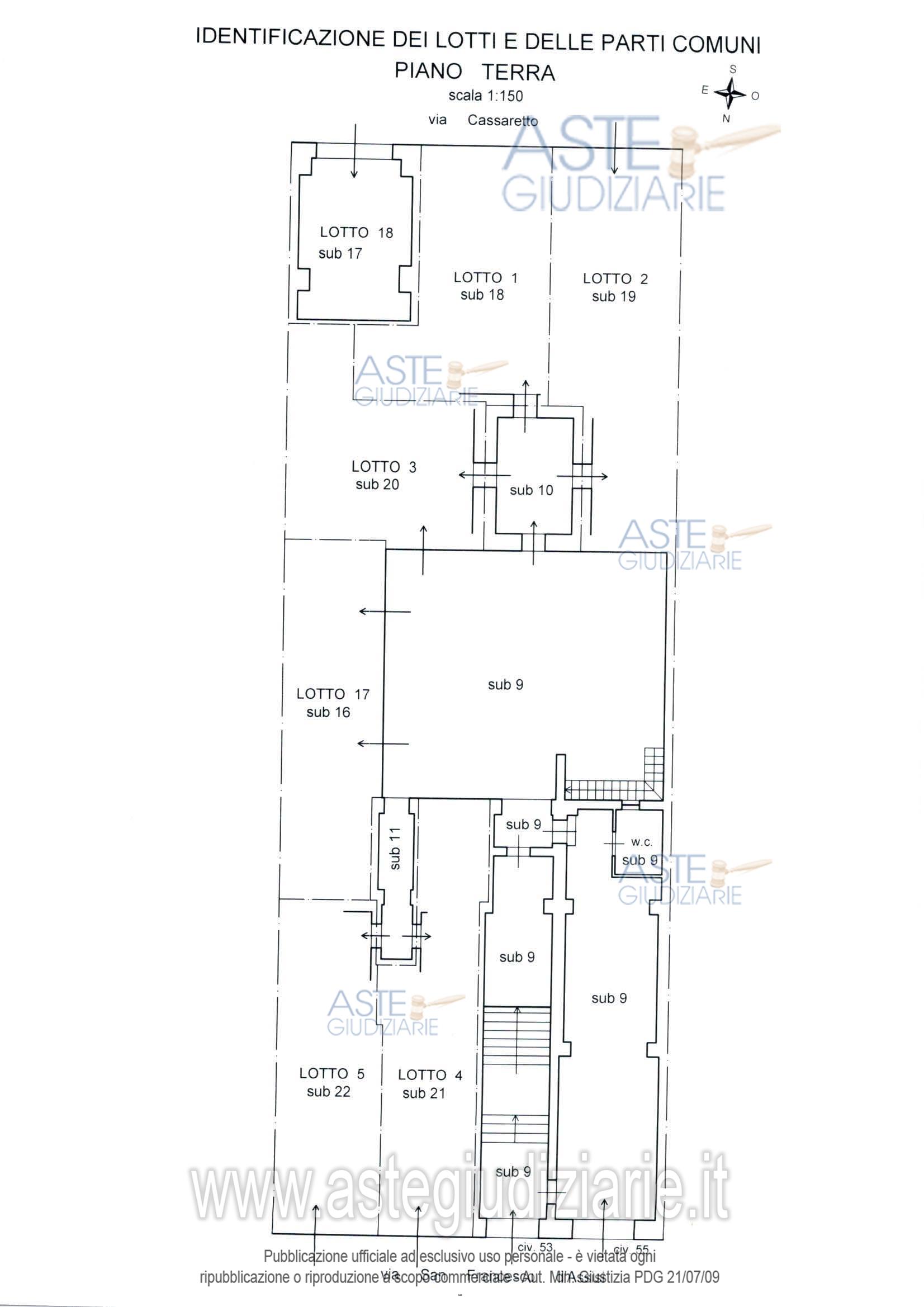
Vendita all'asta Senza incanto, con gara telematica sincrona mista - LOTTO 3: Piena proprietà di un monolocale al piano terra, facente parte di un edificio di maggiore consistenza a tre elevazioni fuori terra, ubicato nella via San Francesco d'Assisi nel centro storico dell’abitato del Comune di Trapani. L'unità immobiliare è costituita da un soggiorno ed un vano adibito a letto con w.c. comunicante; ha accesso dalla via San Francesco d'Assisi; sviluppa una superficie utile di mq. 28,70 circa. Prezzo base € 21.000,00 (offerta minima € 15.750,00). Data vendita 16/10/2025 ore 09:00. Professionista delegato alla vendita Avv. Giovanni Bellet - Email "giovannibellet@gmail.com"; Cell. 3315789603; Tel. 3315789603. Custode Giudiziario Avv. Giovanni Bellet - Email "giovannibellet@gmail.com"; Cell. 3315789603; Tel. 3315789603. Rif. Tribunale di Trapani - Esecuzione immobiliare post legge 80 n. 57/2018

Superficie mq
Vani
Bagni
Piano 0

Tipologia di vendita Giudiziaria
Modalità di vendita Sincrona mista
Termine presentazione offerte 15/10/2025 ore 13:00
Data e ora inizio gara 16/10/2025 ore 09:00
Codice ID astegiudiziarie.it 4263016
0
€ 21.000

Ti interessa questa vendita?

north_east

Clicca qui per essere indirizzato alla scheda sul sito di provenienza

Bene di astegiudiziarie.it