highlight_off
Riferimento annuncio 325988 info

Appartamento Via Polonia n.50 e n.38, 76125 Trani (BT)

5,50
86,00
0
€ 182.000
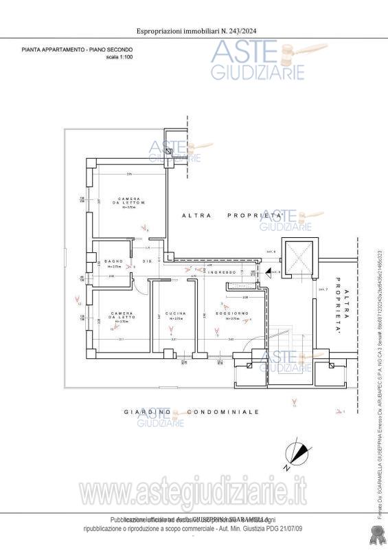
Vendita all'asta Senza incanto, con gara telematica sincrona - LOTTO UNICO: LOTTO UNICOBene n.1-Appartamento ubicato in Trani (BT) alla Via Polonia n.50, scala Y1, interno 9, piano 2, identificato al catasto fabbricati al foglio 23, part. 1363, sub. 11, cat. A/3, cl. 6, consistenza 5,5 vani, sup. catastale 86 mq., rendita € 426,08, piano 2. Bene n.2-Box auto ubicato in Trani (BT) alla Via Polonia n.38, edificio Y1, piano S2, identificato al catasto fabbricati al foglio 23, part. 1363, sub.56, cat. C/6, cl. 3, consistenza 25 mq., sup. catastale 28 mq., rendita € 46,48, piano S2. Prezzo base € 182.000,00 (offerta minima € 136.500,00). Data vendita 21/04/2026 ore 10:30. Giudice Diletta Calò. Professionista delegato alla vendita Avv. Carlo Barracchia - Email "studiolegalebarcan@gmail.com"; Tel. 0883532077. Custode Giudiziario Avv. Carlo Barracchia - Email "studiolegalebarcan@gmail.com"; Tel. 0883532077. Rif. Tribunale di Trani - Esecuzione immobiliare post legge 80 n. 243/2024

Superficie 86,00 mq
Vani 5,50
Bagni
Piano 0

Tipologia di vendita Giudiziaria
Modalità di vendita Sincrona telematica
Termine presentazione offerte 20/04/2026 ore 23:59
Data e ora inizio gara 21/04/2026 ore 10:30
Codice ID astegiudiziarie.it 4342893
5,50
86,00
0
€ 182.000

Ti interessa questa vendita?

north_east

Clicca qui per essere indirizzato alla scheda sul sito di provenienza

Bene di astegiudiziarie.it