highlight_off
Riferimento annuncio 42679 info

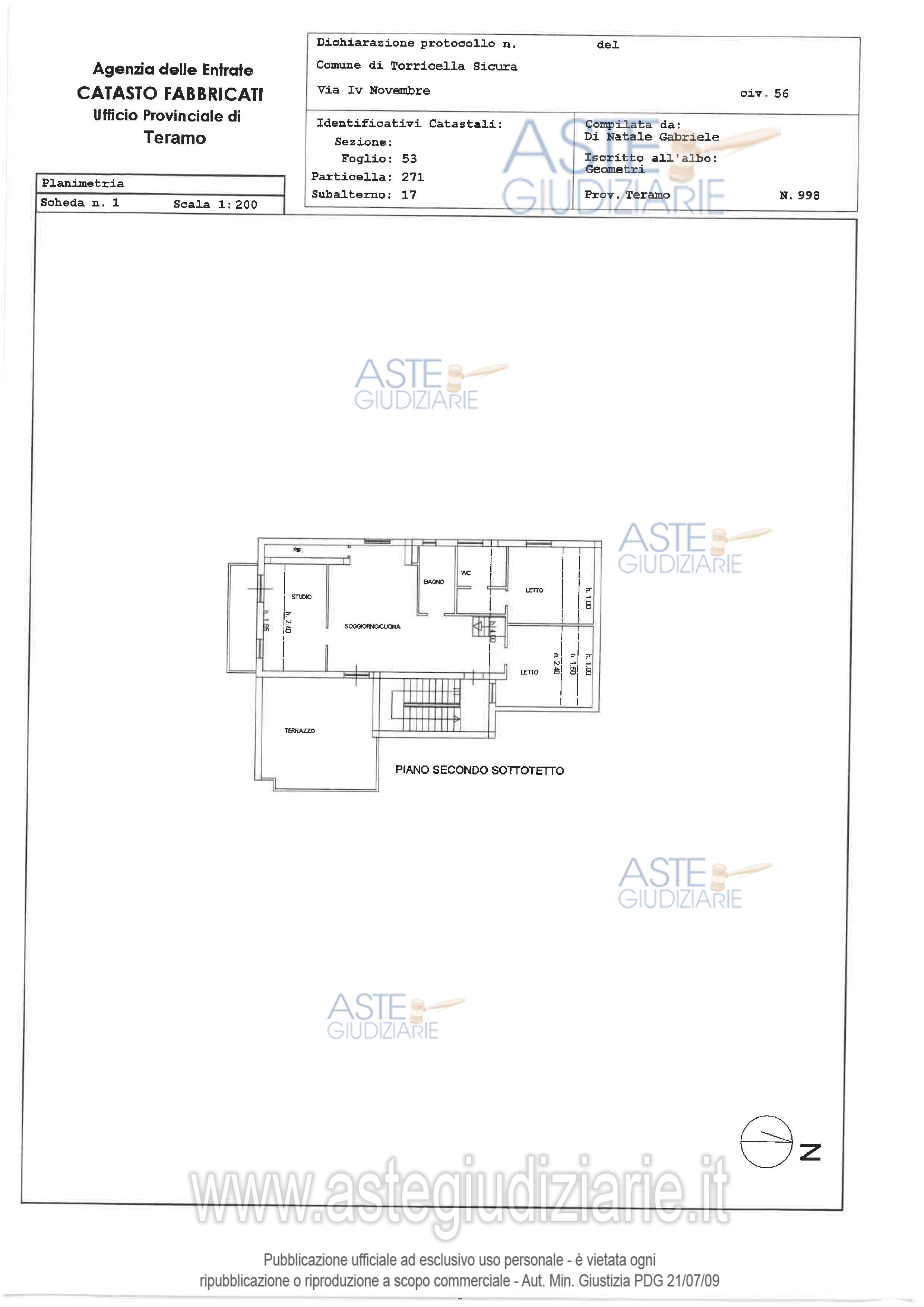
Appartamento Torricella Sicura, S.P. 50a, 64010 Torricella Sicura (TE)

5,50
115,70
2
0
€ 60.000
Vendita all'asta Competitiva, con gara telematica asincrona - LOTTO UNICO: Diritti pari alla piena proprietà su beni immobili facenti parte di un più ampio fabbricato sito nel Comune di Torricella Sicura (TE), S.P. 50a. Prezzo base € 60.000,00 (offerta minima € 60.000,00). Data inizio operazioni di vendita: 26/11/2025 ore 10:00. Professionista delegato alla vendita Geom. Gabriele Di Natale - Email "info@studiodinatale.it". Rif. Tribunale di Teramo - Fallimentare (nuovo rito) n. 23/2014

Superficie 115,70 mq
Vani 5,50
Bagni 2
Piano 0

Tipologia di vendita Giudiziaria
Modalità di vendita Asincrona telematica
Termine presentazione domande 25/11/2025 ore 12:00
Data e ora inizio gara 26/11/2025 ore 10:00
Codice ID astegiudiziarie.it 4170339
5,50
115,70
2
0
€ 60.000

Ti interessa questa vendita?

north_east

Clicca qui per essere indirizzato alla scheda sul sito di provenienza

Bene di astegiudiziarie.it