highlight_off
Riferimento annuncio 306276 info

Appartamento Vocabolo Pozzillo, snc, 02049 Torri in Sabina (RI)

4,50
93,00
0
€ 41.878
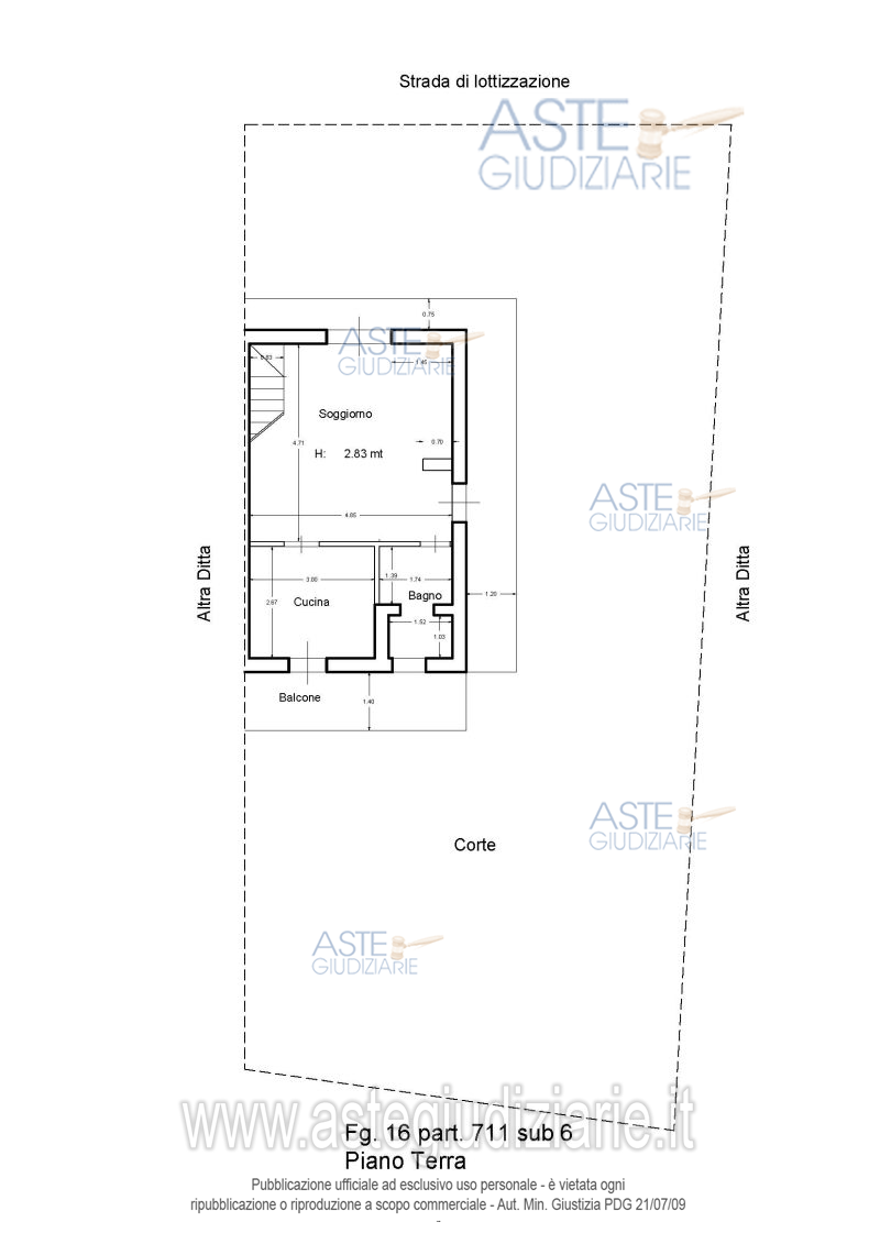
Vendita all'asta Senza incanto, con gara telematica asincrona - LOTTO 0: Abitazione composta da soggiorno, cucina, wc a piano terra; due vani letto e bagno, disimpegno e balcone a piano primo; corte esclusiva e posto auto. di 24 mq. Sup. comm. 93 mq. Prezzo base € 41.878,35 (offerta minima € 31.408,76). Data inizio operazioni di vendita: 21/01/2026 ore 10:15. Giudice Dott. Barbara Vicario. Professionista delegato alla vendita Avv. Fiammetta Cicchetti - Email "f.cicchetti@studiolegalebarbantecicchetti.it"; Tel. 0746483717. Custode Giudiziario Avv. Fiammetta Cicchetti - Email "f.cicchetti@studiolegalebarbantecicchetti.it"; Tel. 0746483717. Rif. Tribunale di Rieti - Espropriazione immobiliare (cartabia) n. 139/2023

Superficie 93,00 mq
Vani 4,50
Bagni
Piano 0

Tipologia di vendita Giudiziaria
Modalità di vendita Asincrona telematica
Termine presentazione offerte 01/01/1900 ore 00:00
Data e ora inizio gara 21/01/2026 ore 10:15
Codice ID astegiudiziarie.it 4328727
4,50
93,00
0
€ 41.878

Ti interessa questa vendita?

north_east

Clicca qui per essere indirizzato alla scheda sul sito di provenienza

Bene di astegiudiziarie.it