highlight_off
Riferimento annuncio 327949 info

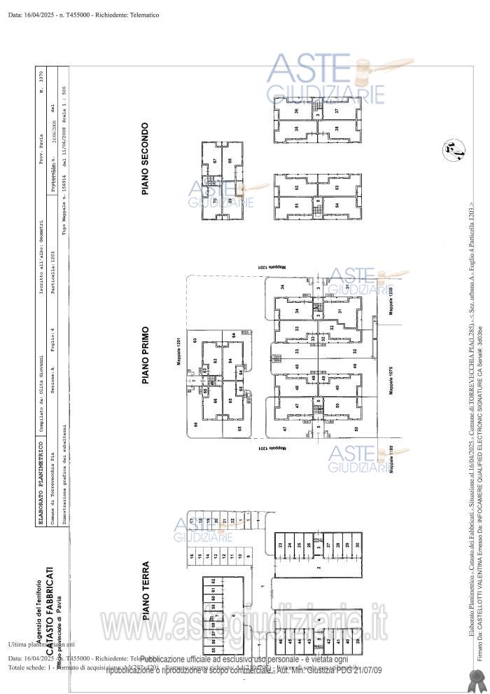
Appartamento Via Padre Pio, 1, 27010 Torrevecchia Pia PV, Italia, 27010 Torrevecchia Pia (PV)

5,50
124,00
0
€ 87.470
Vendita all'asta Senza incanto, con gara telematica asincrona - LOTTO UNICO: Appartamento di civile abitazione posto al piano rialzato con area esterna esclusiva e autorimessa di pertinenza al piano terra. Prezzo base € 87.470,00 (offerta minima € 65.603,00). Data inizio operazioni di vendita: 28/04/2026 ore 12:00. Professionista delegato alla vendita Dott. Stefania Sandri. Custode Giudiziario Ivg Di Pavia E Lodi - Email "immobiliare@ivgpavialodi.it". Rif. Tribunale di Pavia - Espropriazione immobiliare (cartabia) n. 24/2025

Superficie 124,00 mq
Vani 5,50
Bagni
Piano 0

Tipologia di vendita Giudiziaria
Modalità di vendita Asincrona telematica
Termine presentazione offerte 27/04/2026 ore 12:00
Data e ora inizio gara 28/04/2026 ore 12:00
Codice ID astegiudiziarie.it 4346575
5,50
124,00
0
€ 87.470

Ti interessa questa vendita?

north_east

Clicca qui per essere indirizzato alla scheda sul sito di provenienza

Bene di astegiudiziarie.it