highlight_off
Riferimento annuncio 304408 info

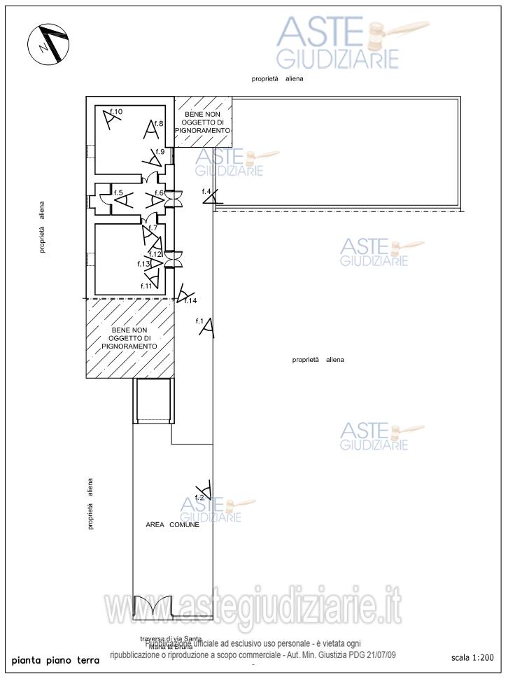
Appartamento Via Santa Maria la Bruna, 5, 80059 Torre del Greco NA, Italia, 80059 Torre del Greco (NA)

5,00
98,00
0
€ 60.750
Vendita all'asta Senza incanto, con gara telematica asincrona - LOTTO UNICO: LOTTO UNICO: APPARTAMENTO AL PIANO TERRA DI CIRCA 98 MQ COMMERCIALI( RISULTANTE DALLA FUSIONE DI DUE UNITA' ABITATIVE) E PERTINENZIALE TERRENO DI CIRCA MQ 194 IN TORRE DEL GRECO, ALLA VIA SANTA MARIA LA BRUNA, N. 5. Prezzo base € 60.750,00 (offerta minima € 45.562,50). Data inizio operazioni di vendita: 16/12/2025 ore 15:00. Professionista delegato alla vendita Avv. Simona Romeo - Email "AVVSIMONAROMEO@GMAIL.COM"; Tel. 0287046197. Custode Giudiziario Avv. Simona Romeo - Email "AVVSIMONAROMEO@GMAIL.COM"; Tel. 0287046197. Rif. Tribunale di Torre Annunziata - Esecuzione immobiliare post legge 80 n. 16/2022

Superficie 98,00 mq
Vani 5,00
Bagni
Piano 0

Tipologia di vendita Giudiziaria
Modalità di vendita Asincrona telematica
Termine presentazione offerte 15/12/2025 ore 13:00
Data e ora inizio gara 16/12/2025 ore 15:00
Codice ID astegiudiziarie.it 4327306
5,00
98,00
0
€ 60.750

Ti interessa questa vendita?

north_east

Clicca qui per essere indirizzato alla scheda sul sito di provenienza

Bene di astegiudiziarie.it