highlight_off
Riferimento annuncio 324039 info

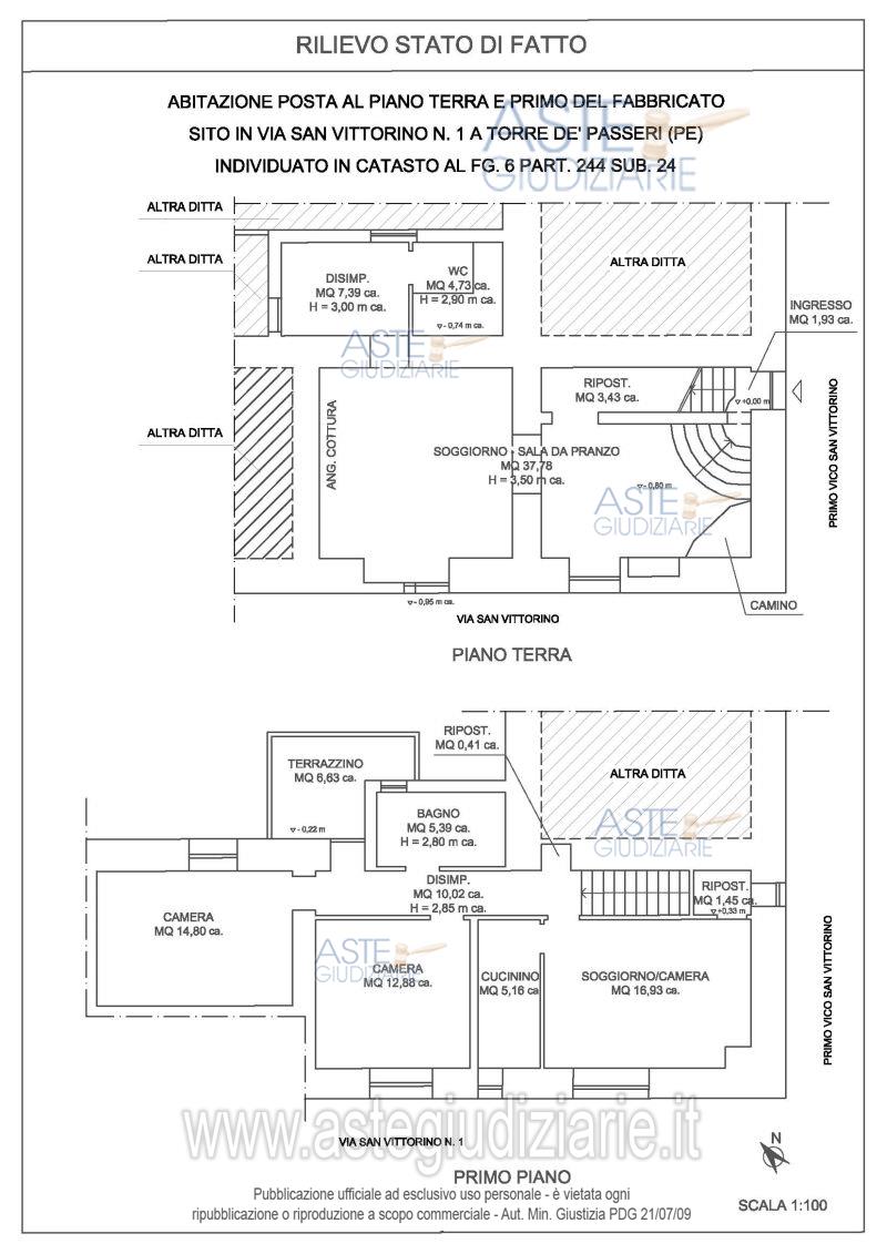
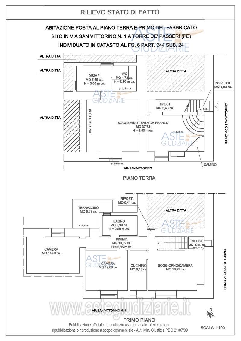
Appartamento Via S. Vittorino, 1, 65029 Torre De' Passeri PE, Italia, 65029 Torre de' Passeri (PE)

7,50
166,61
2
0
€ 80.000
Vendita all'asta Senza incanto, con gara telematica asincrona - LOTTO 1: Abitazione posta al piano terra e primo di un aggregato edilizio. Prezzo base € 80.000,00 (offerta minima € 60.000,00). Data inizio operazioni di vendita: 18/03/2026 ore 10:15. Professionista delegato alla vendita Avv. Barbara Fiucci - Email "bfiucci@yahoo.it"; Cell. 3284529660. Custode Giudiziario Avv. Barbara Fiucci - Email "bfiucci@yahoo.it"; Cell. 3284529660. Rif. Tribunale di Pescara - Espropriazione immobiliare (cartabia) n. 172/2024

Superficie 166,61 mq
Vani 7,50
Bagni 2
Piano 0

Tipologia di vendita Giudiziaria
Modalità di vendita Asincrona telematica
Termine presentazione offerte 01/01/1900 ore 00:00
Data e ora inizio gara 18/03/2026 ore 10:15
Codice ID astegiudiziarie.it 4342862
7,50
166,61
2
0
€ 80.000

Ti interessa questa vendita?

north_east

Clicca qui per essere indirizzato alla scheda sul sito di provenienza

Bene di astegiudiziarie.it