highlight_off
Riferimento annuncio 303311 info

Appartamento Via Pompei, 1, 80058 Torre Annunziata NA, Italia, 80058 Torre Annunziata (NA)

4,50
93,00
2
0
€ 30.375
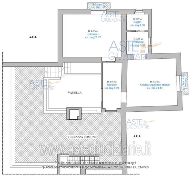
Vendita all'asta Senza incanto, con gara telematica asincrona - LOTTO UNICO: Piena ed esclusiva proprietà di una unità immobiliare facente parte di un fabbricato per civili abitazioni, situato in Torre Annunziata (NA), alla via Pompei n.1, costituita da appartamento al secondo piano (o terzo oltre l'ammezzato) con vano ammezzato sottostante. L'appartamento si compone di: ingresso/disimpegno; cucina/soggiorno pranzo; balcone 1; cucinino; bagno; camera; balcone 2; vano ammezzato sottostante alla camera 1 ad uso ripostiglio. Prezzo base € 30.375,00 (offerta minima € 22.781,25). Data inizio operazioni di vendita: 04/12/2025 ore 14:00. Professionista delegato alla vendita Avv. Antonio Celotto - Email "celottoantonio@libero.it"; Cell. 3334262105; Tel. 08118370023. Custode Giudiziario Avv. Antonio Celotto - Email "celottoantonio@libero.it"; Cell. 3334262105; Tel. 08118370023. Rif. Tribunale di Torre Annunziata - Espropriazione immobiliare (cartabia) n. 206/2023

Superficie 93,00 mq
Vani 4,50
Bagni 2
Piano 0

Tipologia di vendita Giudiziaria
Modalità di vendita Asincrona telematica
Termine presentazione offerte 01/01/1900 ore 00:00
Data e ora inizio gara 04/12/2025 ore 14:00
Codice ID astegiudiziarie.it 4326450
4,50
93,00
2
0
€ 30.375

Ti interessa questa vendita?

north_east

Clicca qui per essere indirizzato alla scheda sul sito di provenienza

Bene di astegiudiziarie.it