highlight_off
Riferimento annuncio 310357 info

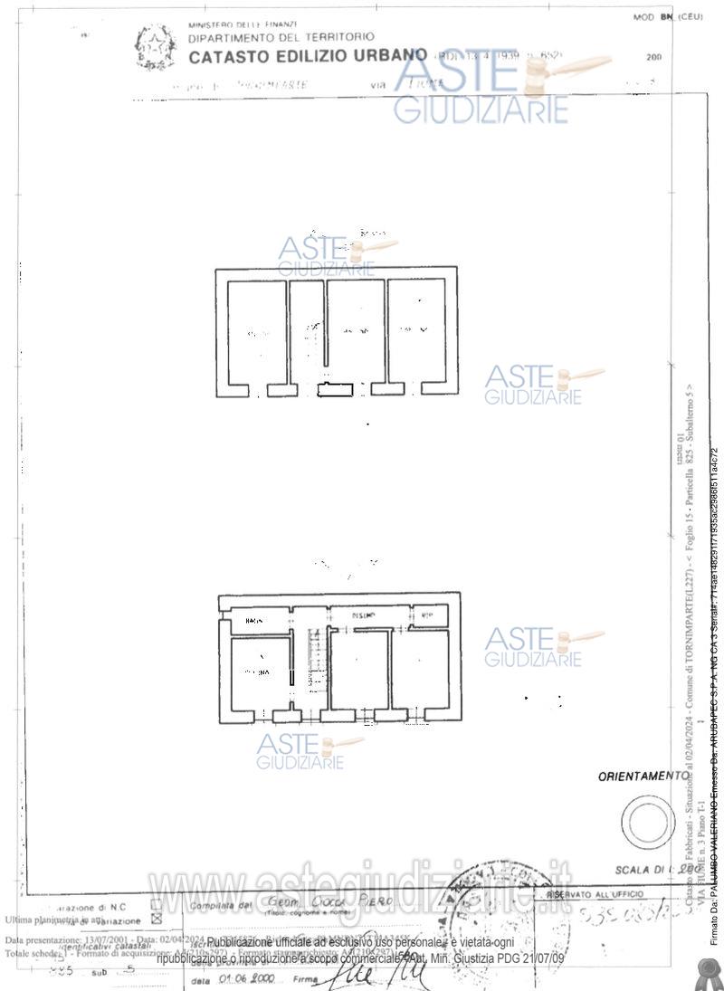
Appartamento Via Fiume, 8, 67049 Piagge AQ, Italia, 67049 Tornimparte (AQ)

5,00
432,50
0
€ 119.650
Vendita in attesa dell'emissione del nuovo bando d'asta. LOTTO 1: BENE N. 1 – Appartamento posto al piano terra e primo del fabbricato, composto da taverna e due locali comunicanti ad uso cantina, oltre alla scala che conduce al piano primo, quest'ultimo costituito da una cucina/soggiorno, due camere da letto, un bagno, due disimpegni ed un ripostiglio. BENE N. 2 - Porzione immobiliare in corso di costruzione (attualmente priva di finiture interne, quali pavimentazioni, intonaci, tramezzature ed impianti tecnologici). Ultimo prezzo base € 119.650,00 (offerta minima € 89.737,50). Professionista delegato alla vendita Avv. Micaela Cavallucci - Email "micaela.cavallucci@studiolegalecavallucci.it". Custode Giudiziario Dott. Ivg Abruzzo - Email "ivgavezzano@gmail.com"; Cell. 3664670370; Tel. 08631940462. Rif. Tribunale di L'Aquila - Esecuzione immobiliare post legge 80 n. 5/2023

Superficie 432,50 mq
Vani 5,00
Bagni
Piano 0

Tipologia di vendita Giudiziaria
Modalità di vendita Asincrona telematica
Termine presentazione offerte 24/09/2025 ore 23:59
Data e ora inizio gara 25/09/2025 ore 11:30
Codice ID astegiudiziarie.it 4332059
5,00
432,50
0
€ 119.650

Ti interessa questa vendita?

north_east

Clicca qui per essere indirizzato alla scheda sul sito di provenienza

Bene di astegiudiziarie.it