highlight_off
Riferimento annuncio 332213 info

Appartamento VIA VERRES, 29, 10100 Torino (TO)

0
€ 41.000
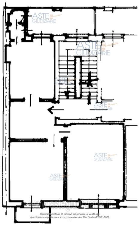
Vendita all'asta Senza incanto, con gara telematica asincrona - LOTTO UNICO: Alloggio al piano quarto (5° f.t.), composto di tre vani, disimpegno, bagno, balcone e terrazzo, annessa cantina, al piano interrato, distinta con il numero “6” nella planimetria del relativo piano allegata al Regolamento di condominio . Prezzo base € 41.000,00 (offerta minima € 30.750,00). Data inizio operazioni di vendita: 16/06/2026 ore 10:00. Giudice Duretto. Professionista delegato alla vendita Avv. Silvia Merlo - Email "avv.merlo@hotmail.it"; Cell. 3293449704. Custode Giudiziario Avv. Silvia Merlo - Email "custodieimmobiliari@gmail.com"; Cell. 3899861477. Rif. Tribunale di Torino - Espropriazione immobiliare (cartabia) n. 618/2024

Superficie mq
Vani
Bagni
Piano 0

Tipologia di vendita Giudiziaria
Modalità di vendita Asincrona telematica
Termine presentazione offerte 15/06/2026 ore 12:00
Data e ora inizio gara 16/06/2026 ore 10:00
Codice ID astegiudiziarie.it 4349595
0
€ 41.000

Ti interessa questa vendita?

north_east

Clicca qui per essere indirizzato alla scheda sul sito di provenienza

Bene di astegiudiziarie.it